highlight_off
Riferimento annuncio 315063 info

Appartamento Via Nuova Belvedere, 103, 80024 Cardito (NA)

4,50
1
0
€ 59.625
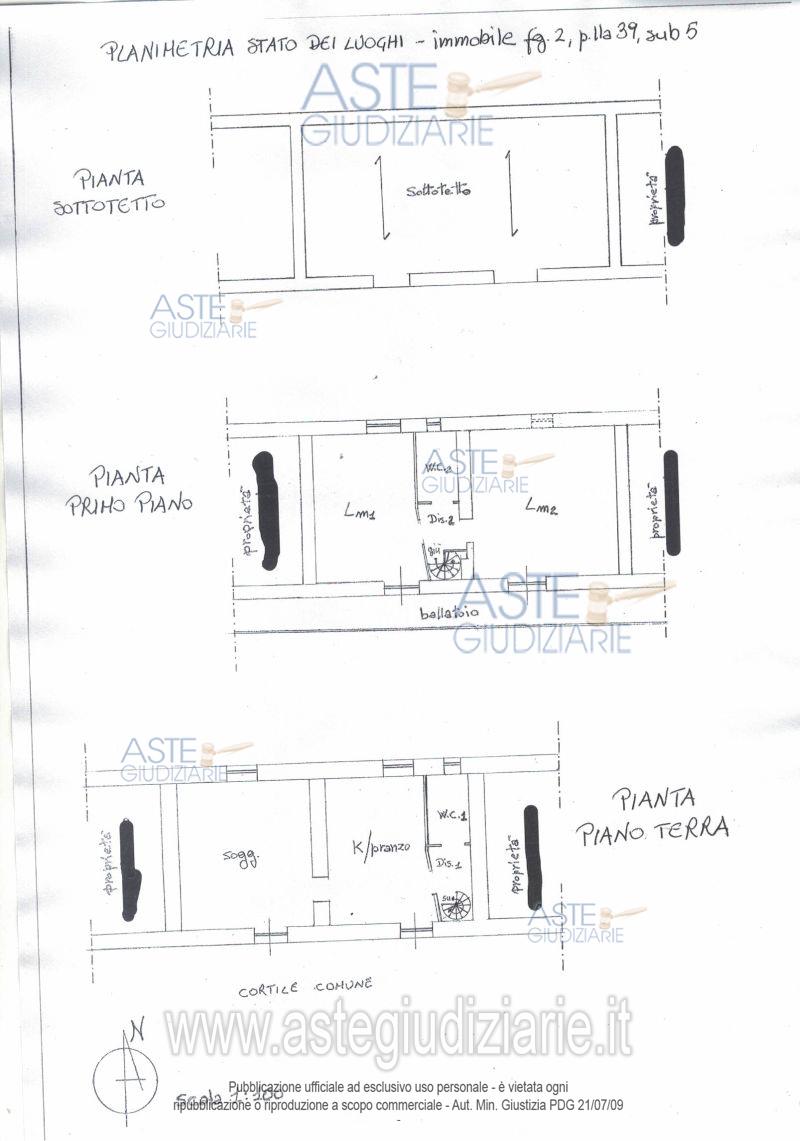
Vendita all'asta Senza incanto, con gara telematica asincrona - LOTTO UNICO: Piena ed intera proprietà di unità abitativa e locale sottotetto, composta da: due ambienti, disimpegno e bagno, al piano terra; due ambienti, disimpegno e bagno, al piano primo; sottotetto con copertura a falde in legno, di pertinenza esclusiva dell’abitazione (al sottotetto non è possibile accederci dall’abitazione tramite scala interna, ma solo attraverso una scala amovibile), al piano secondo. All’unità abitativa si accede o direttamente dal cortile comune attraverso due distinte porte/fines. Prezzo base € 59.625,00 (offerta minima € 44.719,00). Data inizio operazioni di vendita: 26/05/2026 ore 16:30. Giudice Annamaria Buffardo. Professionista delegato alla vendita Dott. Carmela Cecere. Custode Giudiziario Dott. Carmela Cecere - Email "studiocecerecarmela@gmail.com"; Cell. 3489361610. Rif. Tribunale di Napoli Nord - Esecuzione immobiliare post legge 80 n. 408/2015

Superficie mq
Vani 4,50
Bagni 1
Piano 0

Tipologia di vendita Giudiziaria
Modalità di vendita Asincrona telematica
Termine presentazione offerte 01/01/1900 ore 00:00
Data e ora inizio gara 26/05/2026 ore 16:30
Codice ID astegiudiziarie.it 4335999
4,50
1
0
€ 59.625

Ti interessa questa vendita?

north_east

Clicca qui per essere indirizzato alla scheda sul sito di provenienza

Bene di astegiudiziarie.it