highlight_off
Riferimento annuncio 311167 info

Appartamento Località Genna Corriga, snc, 09013 Carbonia (CI)

3,00
55,79
0
€ 40.032
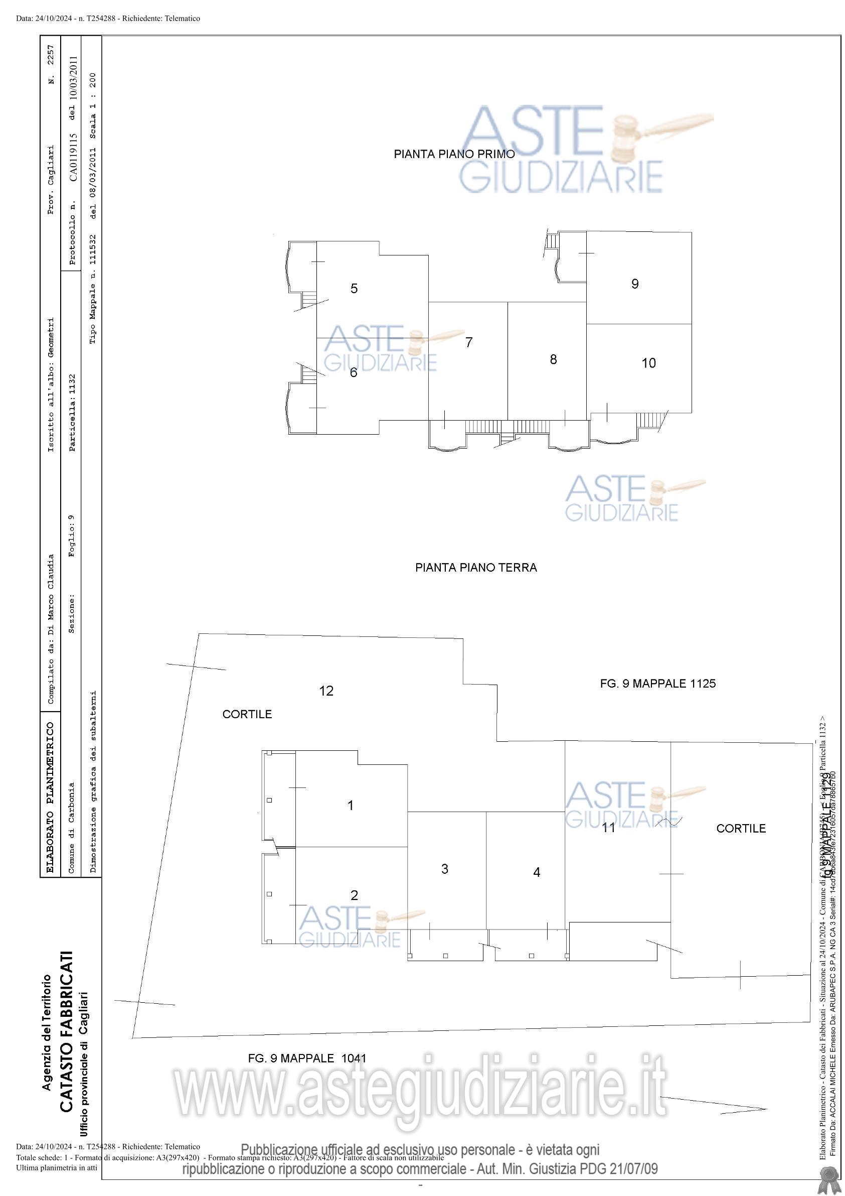
Vendita all'asta Senza incanto, con gara telematica asincrona - LOTTO 2: Carbonia, Località Genna Corriga snc, quota pari a 1/1 del diritto di proprietà di unità immobiliare, costituita da appartamento al piano terra di maggior palazzina di due piani fuori terra, con unico ingresso pedonale su veranda/terrazza privata (ingresso/soggiorno con angolo cottura, disimpegno, camera, bagno) categoria A/3, consistenza 3 vani e posto auto scoperto in area cortilizia indivisa, bene comune non censibile. Prezzo base € 40.032,00 (offerta minima € 30.024,00). Data inizio operazioni di vendita: 04/06/2026 ore 10:00. Giudice: Silvia Cocco. Professionista delegato alla vendita: Dott. Edoardo Sanna - Email "studioedoardosanna@gmail.com"; Tel. 070/490790. Custode Giudiziario: Ivg Di Cagliari - Email "ivg.visiteimmobili@tiscali.it"; Tel. 070/2299036. Rif. Tribunale di Cagliari - Espropriazione immobiliare (cartabia) n. 174/2024

Superficie 55,79 mq
Vani 3,00
Bagni
Piano 0

Tipologia di vendita Giudiziaria
Modalità di vendita Asincrona telematica
Termine presentazione offerte 03/06/2026 ore 13:00
Data e ora inizio gara 04/06/2026 ore 10:00
Codice ID astegiudiziarie.it 4332601
3,00
55,79
0
€ 40.032

Ti interessa questa vendita?

north_east

Clicca qui per essere indirizzato alla scheda sul sito di provenienza

Bene di astegiudiziarie.it