highlight_off
Riferimento annuncio 320958 info

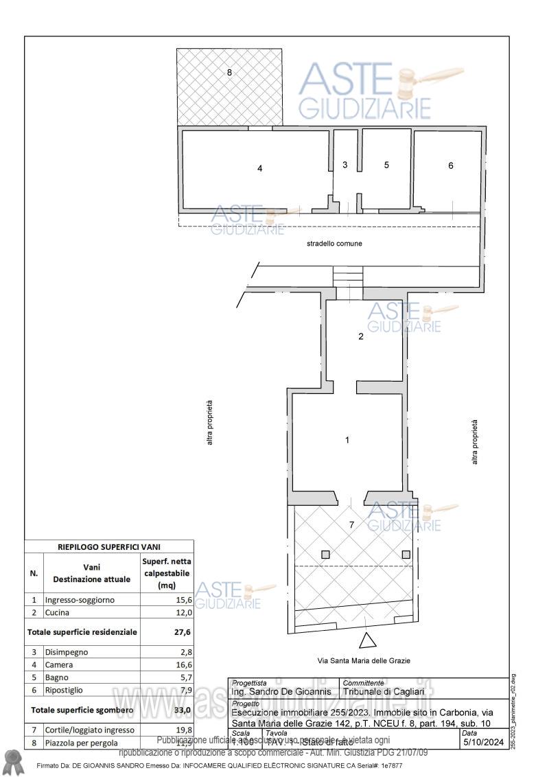
Appartamento Via Santa Maria delle Grazie, 142, 09013 Carbonia SU, Italia, 09013 Carbonia (SU)

4,00
92,80
0
€ 26.000
Vendita all'asta Senza incanto, con gara telematica asincrona - LOTTO UNICO: In Comune di Carbonia, Fraz.Barbusi, quota pari all’intero del diritto di proprietà dell’unità immobiliare in Via Santa Maria delle Grazie n.142 (al Catasto il civico non risulta indicato) composta da ingresso soggiorno, cucina, cortile, quattro vani con destinazione ripostigli/locale di sgombero, area sterrata. Prezzo base € 26.000,00 (offerta minima € 19.500,00). Data inizio operazioni di vendita: 27/01/2026 ore 09:00. Giudice Valentina Frongia. Professionista delegato alla vendita Not. Massimiliano Vadilonga - Email "ufficiouniconotai@pec.it"; Tel. 07060222574. Custode Giudiziario Ivg Cagliari - Email "ivg.visiteimmobili@tiscali.it"; Tel. 0702299036. Rif. Tribunale di Cagliari - Espropriazione immobiliare (cartabia) n. 255/2023

Superficie 92,80 mq
Vani 4,00
Bagni
Piano 0

Tipologia di vendita Giudiziaria
Modalità di vendita Asincrona telematica
Termine presentazione offerte 26/01/2026 ore 13:00
Data e ora inizio gara 27/01/2026 ore 09:00
Codice ID astegiudiziarie.it 4340734
4,00
92,80
0
€ 26.000

Ti interessa questa vendita?

north_east

Clicca qui per essere indirizzato alla scheda sul sito di provenienza

Bene di astegiudiziarie.it