highlight_off
Riferimento annuncio 323216 info

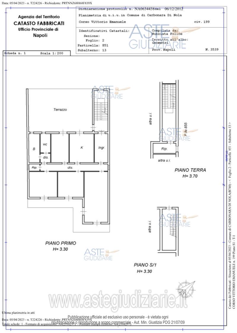
Appartamento Corso Vittorio Emanuele, 137, 80030 Carbonara di Nola NA, Italia, 80030 Carbonara di Nola (NA)

8,50
230,00
0
€ 134.000
Vendita all'asta Senza incanto, con gara telematica asincrona - LOTTO UNICO: Piena ed intera proprietà di appartamento ubicato a Carbonara di Nola (NA) - Corso Vittorio Emanuele n.137 oggi Via Generale G. Curto n.9, piano S1-T-1 Il bene oggetto di pignoramento fa parte di un fabbricato ad uso residenziale e commerciale, ubicato in Carbonara di Nola (Na) con accesso inizialmente da corso Vittorio Emanuele n.137 (ex 199) oggi da via Generale Giuseppe Curto n.9. Come meglio precisato nelle perizie depositate in atti dall’Esperto Stimatore Arch. A. Prota del 01.07.2023 e del 31.01.2024. Prezzo base € 134.000,00 (offerta minima € 100.500,00). Data inizio operazioni di vendita: 17/03/2026 ore 16:00. Giudice Gennaro Beatrice. Professionista delegato alla vendita Dott. Federico Toledo - Email "toledo@studiotoledo.it"; Tel. 0815752147. Custode Giudiziario Dott. Federico Toledo - Email "toledo@studiotoledo.it"; Tel. 0815752147. Rif. Tribunale di Nola - Esecuzione immobiliare post legge 80 n. 127/2020

Superficie 230,00 mq
Vani 8,50
Bagni
Piano 0

Tipologia di vendita Giudiziaria
Modalità di vendita Asincrona telematica
Termine presentazione offerte 01/01/1900 ore 00:00
Data e ora inizio gara 17/03/2026 ore 16:00
Codice ID astegiudiziarie.it 4341414
8,50
230,00
0
€ 134.000

Ti interessa questa vendita?

north_east

Clicca qui per essere indirizzato alla scheda sul sito di provenienza

Bene di astegiudiziarie.it