highlight_off
Riferimento annuncio 333115 info

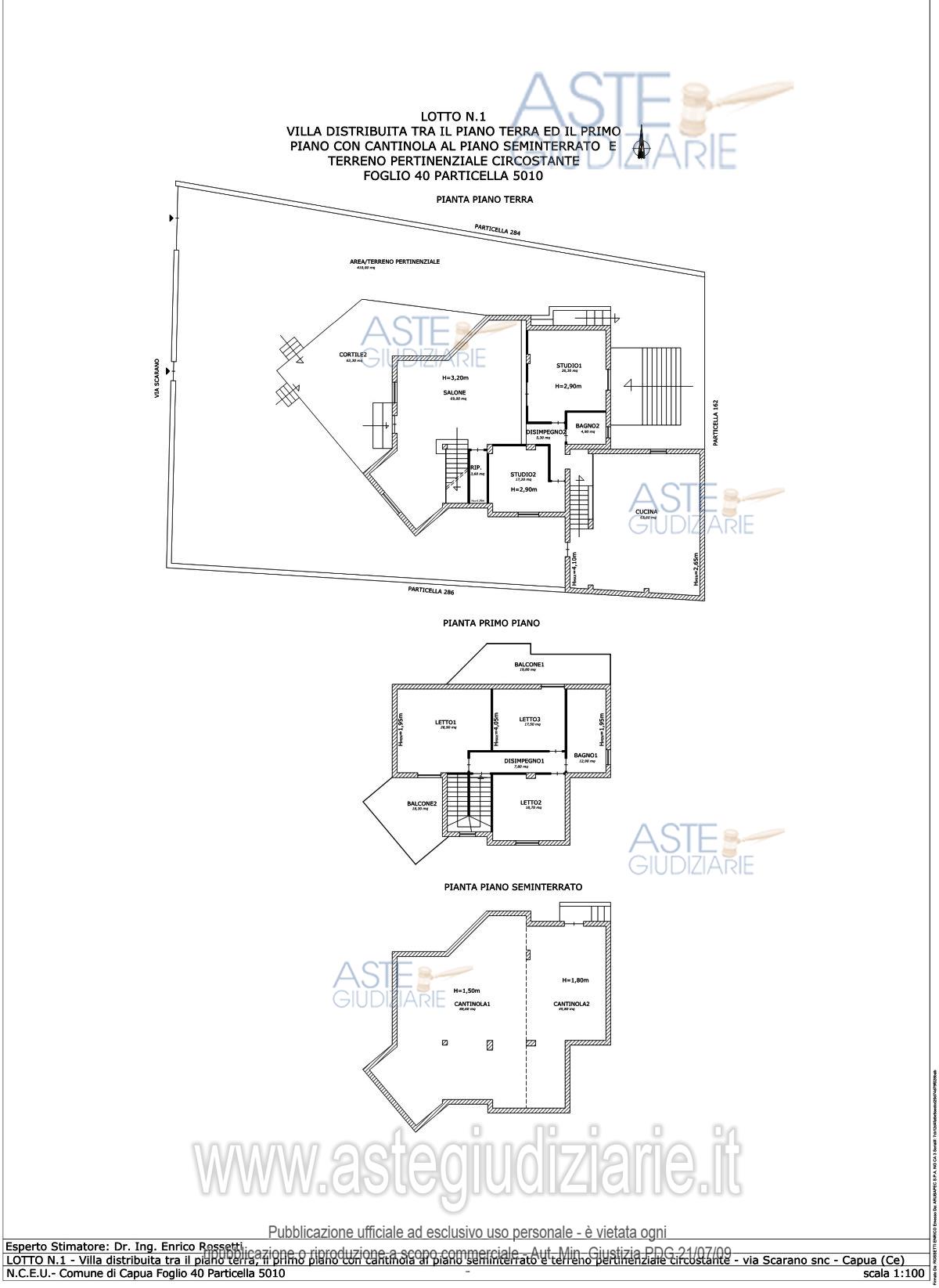
Appartamento via Scarano snc, 81043 Capua (CE)

9,50
300,00
0
€ 245.000
Vendita all'asta Senza incanto, con gara telematica asincrona - LOTTO 1: Villa distribuita tra il piano terra ed il primo piano con cantinola al piano seminterrato e terreno pertinenziale circostante.E' necessario giudizio di accessione invertita per sconfinamento x 9,00 mq. della villa su P.lla 163, Foglio 40 attigua, i cui costi tutti sono stati considerati nel prezzo base. Prezzo base € 245.000,00 (offerta minima € 183.750,00). Data inizio operazioni di vendita: 21/07/2026 ore 10:00. Custode Giudiziario: Avv. Ferdinando Mancini - Email "ferdimancini@libero.it"; Tel. 0823/848292; Cell. 338/4886334. Rif. Tribunale di Santa Maria Capua Vetere - Esecuzione immobiliare post legge 80 n. 101/2024

Superficie 300,00 mq
Vani 9,50
Bagni
Piano 0

Tipologia di vendita Giudiziaria
Modalità di vendita Asincrona telematica
Termine presentazione offerte 01/01/1900 ore 00:00
Data e ora inizio gara 21/07/2026 ore 10:00
Codice ID astegiudiziarie.it 4350518
9,50
300,00
0
€ 245.000

Ti interessa questa vendita?

north_east

Clicca qui per essere indirizzato alla scheda sul sito di provenienza

Bene di astegiudiziarie.it