highlight_off
Riferimento annuncio 331180 info

Appartamento VIA DELLE VILLE N. 70, 55012 Capannori (LU)

7,50
191,00
0
€ 72.932
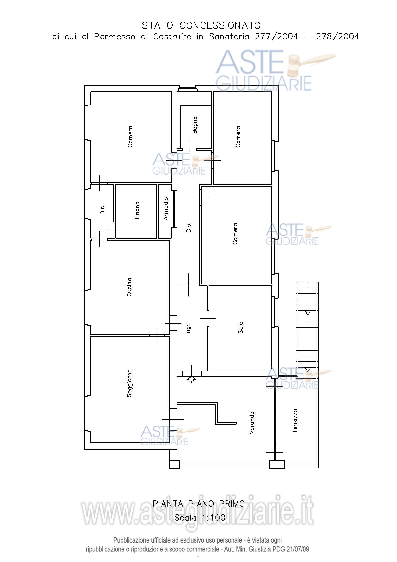
Vendita all'asta Senza incanto, con gara telematica sincrona mista - LOTTO UNICO: I diritti della piena proprietà su di un appartamento per civile abitazione, posto al piano primo di un fabbricato promiscuo elevato su due piani fuori terra compreso il terrestre. Si compone di ingresso-corridoio-disimpegno con vano armadi, altro ingresso in soggiorno, sala, cucina, tre camere e due bagni. Prezzo base € 72.931,95 (offerta minima € 54.698,96). Data vendita 26/05/2026 ore 11:00. Giudice: Giulia Simoni. Professionista delegato alla vendita: Avv. Marcello Giovanni Cozzi - Email "avvmarcellocozzi@tiscali.it"; Tel. 0583/587942; Cell. 335/1345594. Custode Giudiziario: Ivg Lucca Sofir Srl - Email "custodieivg@gmail.com"; Tel. 0583/418555. Rif. Tribunale di Lucca - Espropriazione immobiliare (cartabia) n. 166/2024

Superficie 191,00 mq
Vani 7,50
Bagni
Piano 0

Tipologia di vendita Giudiziaria
Modalità di vendita Sincrona mista
Termine presentazione offerte 25/05/2026 ore 12:00
Data e ora inizio gara 26/05/2026 ore 11:00
Codice ID astegiudiziarie.it 4349000
7,50
191,00
0
€ 72.932

Ti interessa questa vendita?

north_east

Clicca qui per essere indirizzato alla scheda sul sito di provenienza

Bene di astegiudiziarie.it