highlight_off
Riferimento annuncio 325604 info

Appartamento Via Lazio, 1, 90040 Capaci PA, Italia, 90040 Capaci (PA)

0
€ 42.560
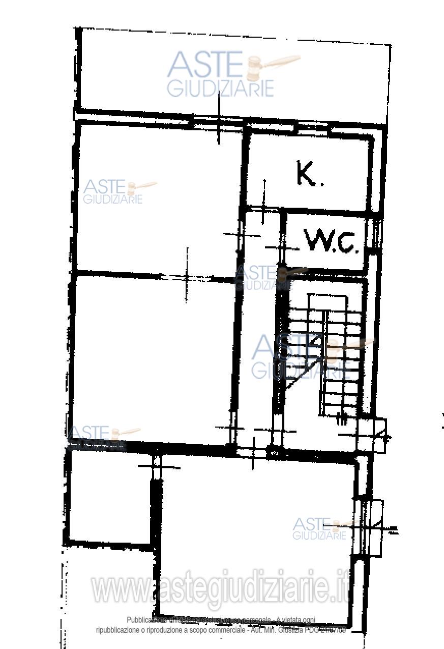
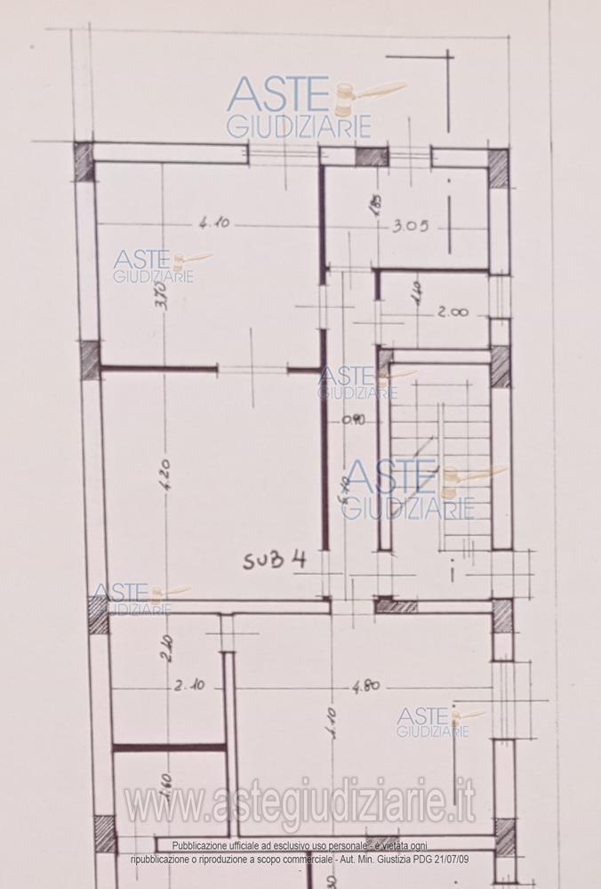
Vendita all'asta Senza incanto, con gara telematica sincrona mista - LOTTO UNICO: piena e intera proprietà dell’immobile sito a Capaci (Pa), via Lazio civ. 1 (civ. 56 riscontrato durante il sopralluogo), piano terra, censito al catasto fabbricati del Comune di Capaci (Pa) al foglio 4, particella 1148, sub 4, cat. A/3, classe 2, consistenza 4,5 vani, totale sup. catastale 88 mq (escluso aree scoperte 83 mq), rendita € 278,89. Prezzo base € 42.560,00 (offerta minima € 31.920,00). Data vendita 31/03/2026 ore 10:00. Professionista delegato alla vendita Avv. Avv. Marianne Sommatino - Email "aste.letstudiolegale@gmail.com"; Tel. 0915641582. Custode Giudiziario Avv. Avv. Marianne Sommatino - Email "aste.letstudiolegale@gmail.com"; Tel. 0915641582. Rif. Tribunale di Palermo - Espropriazione immobiliare (cartabia) n. 404/2024

Superficie mq
Vani
Bagni
Piano 0

Tipologia di vendita Giudiziaria
Modalità di vendita Sincrona mista
Termine presentazione offerte 01/01/1900 ore 00:00
Data e ora inizio gara 31/03/2026 ore 10:00
Codice ID astegiudiziarie.it 4344100
0
€ 42.560

Ti interessa questa vendita?

north_east

Clicca qui per essere indirizzato alla scheda sul sito di provenienza

Bene di astegiudiziarie.it