highlight_off
Riferimento annuncio 278311 info

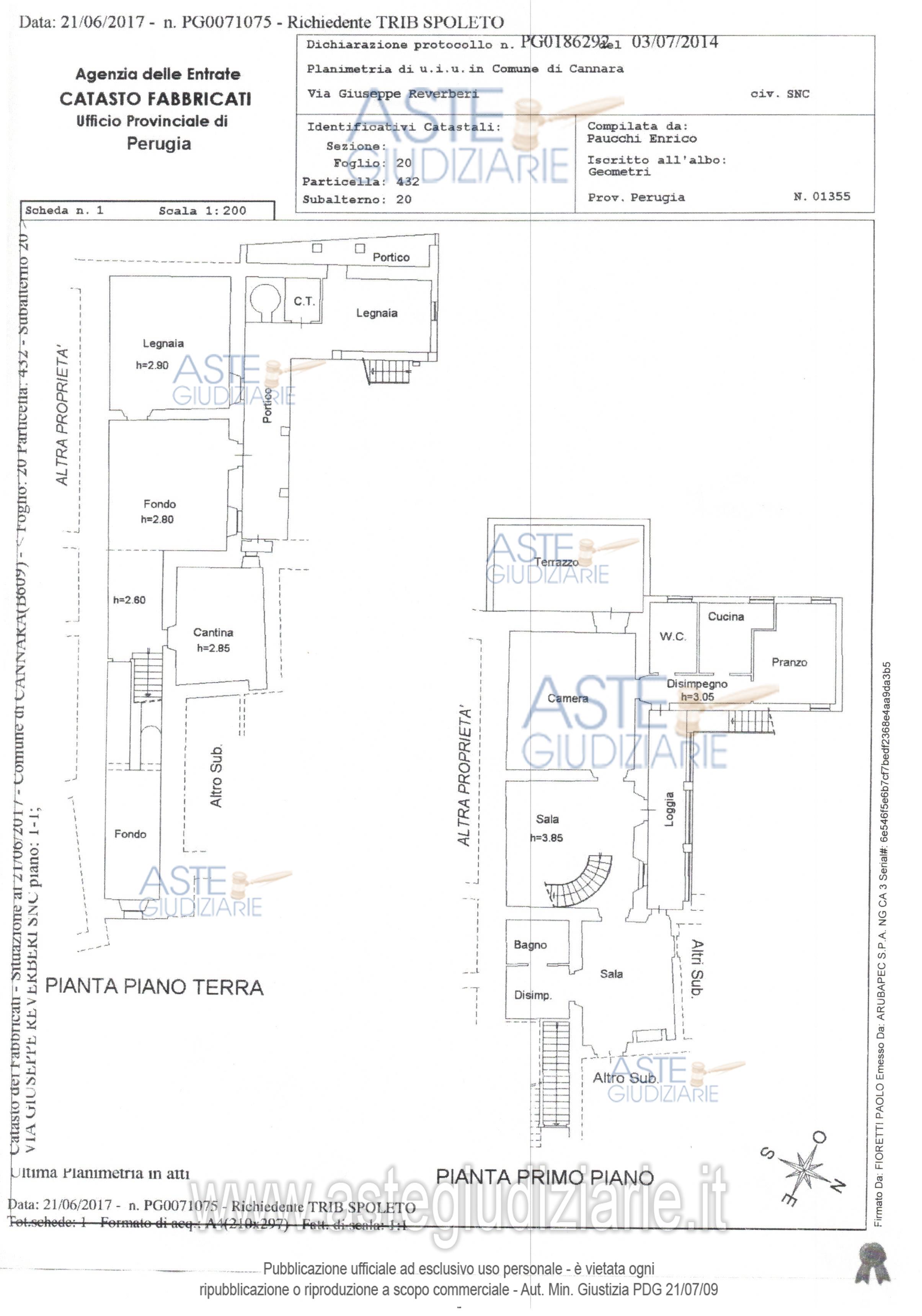
Appartamento Via Costanza Baglioni, 06033 Cannara PG, Italia, 06033 Cannara (PG)

18,00
487,00
0
€ 159.000
Vendita all'asta Senza incanto, con gara telematica sincrona mista - LOTTO UNICO: CANNARA (PG) VIA BAGLIONI - VIA RIVERBERI SNC. Prezzo base € 159.000,00 (offerta minima € 119.250,00). Data vendita 04/06/2026 ore 12:00. Giudice: Alberto Cappellini. Professionista delegato alla vendita: Avv. Giovanni De Iaco - Email "studiodeiaco@deiaco.eu"; Cell. 380/3014933. Custode Giudiziario: Ivg Perugia - Email "visite@ivgumbria.com"; Tel. 075/5913525. Rif. Tribunale di Spoleto - Esecuzione immobiliare post legge 80 n. 182/2013

Superficie 487,00 mq
Vani 18,00
Bagni
Piano 0

Tipologia di vendita Giudiziaria
Modalità di vendita Sincrona mista
Termine presentazione offerte 01/01/1900 ore 00:00
Data e ora inizio gara 04/06/2026 ore 12:00
Codice ID astegiudiziarie.it 4306999
18,00
487,00
0
€ 159.000

Ti interessa questa vendita?

north_east

Clicca qui per essere indirizzato alla scheda sul sito di provenienza

Bene di astegiudiziarie.it