highlight_off
Riferimento annuncio 282783 info

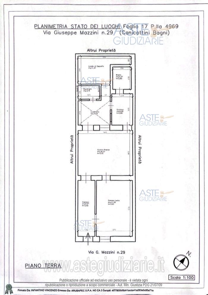
Appartamento Via Giuseppe Mazzini, 29, 96010 Canicattini Bagni SR, Italia, 96010 Canicattini Bagni (SR)

4,50
0
€ 14.133
Vendita all'asta Senza incanto, con gara telematica sincrona mista - LOTTO UNICO: Civile abitazione ubicata al piano terra dell’immobile sito nella Via Giuseppe Mazzini n.29 in Canicattini Bagni (SR), censito al NCEU al Foglio 17 Particella 4969 (ex p.lla 201) Cat.A/5 - Classe 2 - Consistenza 4,5 vani - rendita €.104,58 - Cl. Energetica “G. Prezzo base € 14.132,82 (offerta minima € 10.599,60). Data vendita 15/10/2025 ore 12:00. Giudice Dott. Concita Cultrera. Professionista delegato alla vendita Avv. Sergio Spinoso - Email "info@studiolegalespinoso.it"; Cell. 3715716444; Tel. 0931754382. Custode Giudiziario Avv. Sergio Spinoso - Email "info@studiolegalespinoso.it"; Cell. 3715716444; Tel. 0931754382. Rif. Tribunale di Siracusa - Espropriazione immobiliare (cartabia) n. 138/2023

Superficie mq
Vani 4,50
Bagni
Piano 0

Tipologia di vendita Giudiziaria
Modalità di vendita Sincrona mista
Termine presentazione offerte 14/10/2025 ore 12:00
Data e ora inizio gara 15/10/2025 ore 12:00
Codice ID astegiudiziarie.it 4310588
4,50
0
€ 14.133

Ti interessa questa vendita?

north_east

Clicca qui per essere indirizzato alla scheda sul sito di provenienza

Bene di astegiudiziarie.it