highlight_off
Riferimento annuncio 323131 info

Appartamento Via Aleardo Aleardi, 92024 Canicattì AG, Italia, 92024 Canicattì (AG)

129,29
0
€ 63.477
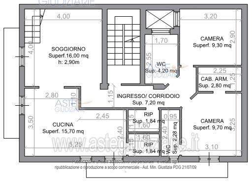
Vendita all'asta Senza incanto, con gara telematica sincrona mista - LOTTO UNICO: LOTTO UNICO: costituito da Immobile ad uso abitativo sito nel Comune di Canicattì (AG), Via Aleardo Aleardi n. 5, posto ai piani terzo e quarto di un fabbricato per civile abitazione. Identificato al NCEU Catasto Fabbricati- Foglio 54- Particella 768 -sub 15 - Indirizzo Via Aleardo Aleardi, Piano 3-4. Con annesso magazzino posto al piano terra del medesimo fabbricato. Identificato al NCEU Catasto Fabbricati- Foglio 54- Part 768 -sub 10 -natura C/2- Indirizzo Via Aleardo Aleardi Piano T. Prezzo base € 63.476,91 (offerta minima € 47.607,68). Data vendita 28/07/2026 ore 10:30. Giudice: Domenica Spano'. Professionista delegato alla vendita: Avv. Chetty Nero - Email "chetty.nero@virgilio.it"; Cell. 329/7186239. Custode Giudiziario: Avv. Chetty Nero - Email "chetty.nero@virgilio.it"; Cell. 329/7186239. Rif. Tribunale di Agrigento - Espropriazione immobiliare (cartabia) n. 93/2023

Superficie 129,29 mq
Vani
Bagni
Piano 0

Tipologia di vendita Giudiziaria
Modalità di vendita Sincrona mista
Termine presentazione offerte 01/01/1900 ore 00:00
Data e ora inizio gara 28/07/2026 ore 10:30
Codice ID astegiudiziarie.it 4340803
129,29
0
€ 63.477

Ti interessa questa vendita?

north_east

Clicca qui per essere indirizzato alla scheda sul sito di provenienza

Bene di astegiudiziarie.it