highlight_off
Riferimento annuncio 311436 info

Appartamento Via L'Aquila, 7, 92024 Canicattì AG, Italia, 92024 Canicattì (AG)

6,50
1
€ 52.500
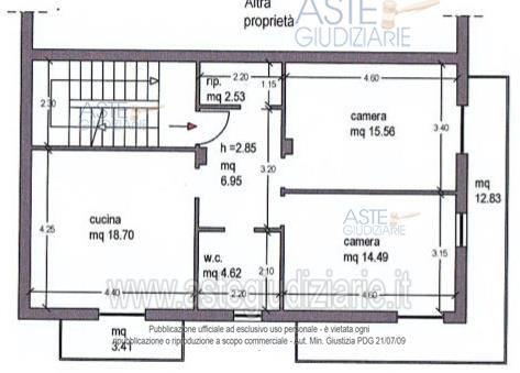
Vendita all'asta Senza incanto, con gara telematica sincrona mista - LOTTO UNICO: fabbricato ubicato nel Comune di Canicattì (AG), nella via L’Aquila n. 7, costituito da due unità immobiliari poste una a piano terra, l’altra posta al primo e secondo piano. Le due unità immobiliari sono identificate al CATASTO FABBRICATI DI Canicattì:- ABITAZIONE DI TIPO POPOLARE A PIANO TERRA, CATASTO FABBRICATI FOG. 45, PART. 538, SUB , cat. A4, 4,5 vani;- ABITAZIONE DI TIPO ECONOMICA A PIANO 1 - 2, CATASTO FABBRICATI FOG. 45, PART. 538, SUB 4; cat. A3, 6,5 vani;. Prezzo base € 52.500,00 (offerta minima € 39.375,00). Data vendita 16/04/2026 ore 11:30. Giudice Domenica Spano'. Professionista delegato alla vendita Avv. Chetty Nero - Email "chetty.nero@virgilio.it"; Tel. 3297186239. Custode Giudiziario Avv. Chetty Nero - Email "chetty.nero@virgilio.it"; Tel. 3297186239. Rif. Tribunale di Agrigento - Esecuzione immobiliare post legge 80 n. 208/2018

Superficie mq
Vani 6,50
Bagni
Piano 1

Tipologia di vendita Giudiziaria
Modalità di vendita Sincrona mista
Termine presentazione offerte 01/01/1900 ore 00:00
Data e ora inizio gara 16/04/2026 ore 11:30
Codice ID astegiudiziarie.it 4333111
6,50
1
€ 52.500

Ti interessa questa vendita?

north_east

Clicca qui per essere indirizzato alla scheda sul sito di provenienza

Bene di astegiudiziarie.it