highlight_off
Riferimento annuncio 305422 info

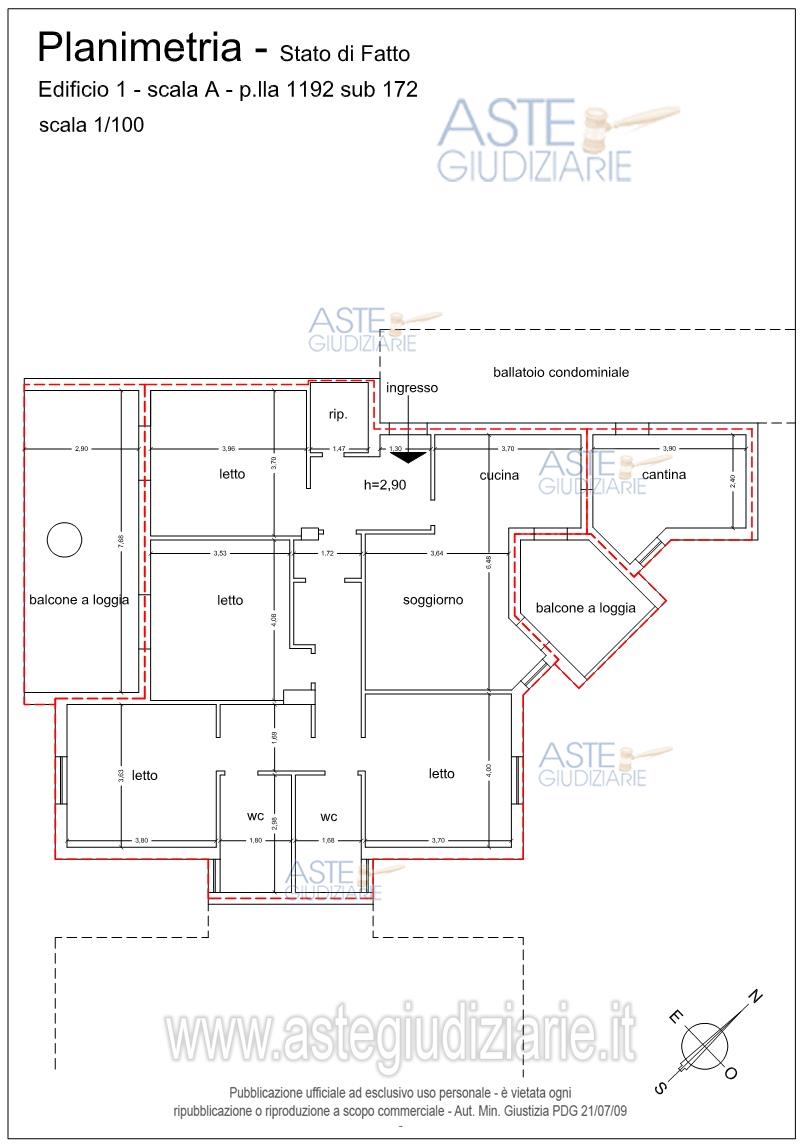
Appartamento via Pirandello, 199, 92024 Canicattì (AG)

8,00
2
€ 27.750
Vendita all'asta Senza incanto, con gara telematica sincrona mista - LOTTO 2: Unità immobiliare a destinazione residenziale ricadente in Canicattì (Ag) via Pirandello civico 199 – Edificio 1 – Scala A – al piano secondo di stabile comune di complessivi cinque piani fuori terra (Ballatoio Nord), dotato di ascensore. È identificato al NCEU Fg 54 p.lla 1192 (edificio 1 scala A) sub 172, cat A3, classe 4^, consistenza 8,0 vani. Prezzo base € 27.750,00 (offerta minima € 21.000,00). Data vendita 16/03/2026 ore 10:30. Giudice Laura Torregrossa. Professionista delegato alla vendita Dott. Alessandro Cillino - Email "alecillino@aacconsultingsrl.it"; Tel. 0912733522. Custode Giudiziario Dott. Alessandro Cillino - Email "alecillino@aacconsultingsrl.it"; Tel. 0912733522. Rif. Tribunale di Agrigento - Esecuzione immobiliare post legge 80 n. 127/2018

Superficie mq
Vani 8,00
Bagni
Piano 2

Tipologia di vendita Giudiziaria
Modalità di vendita Sincrona mista
Termine presentazione offerte 01/01/1900 ore 00:00
Data e ora inizio gara 16/03/2026 ore 10:30
Codice ID astegiudiziarie.it 4328010
8,00
2
€ 27.750

Ti interessa questa vendita?

north_east

Clicca qui per essere indirizzato alla scheda sul sito di provenienza

Bene di astegiudiziarie.it