highlight_off
Riferimento annuncio 324598 info

Appartamento Via Filermo, 9, 33070 Caneva (PN)

7,50
211,00
0
€ 123.038
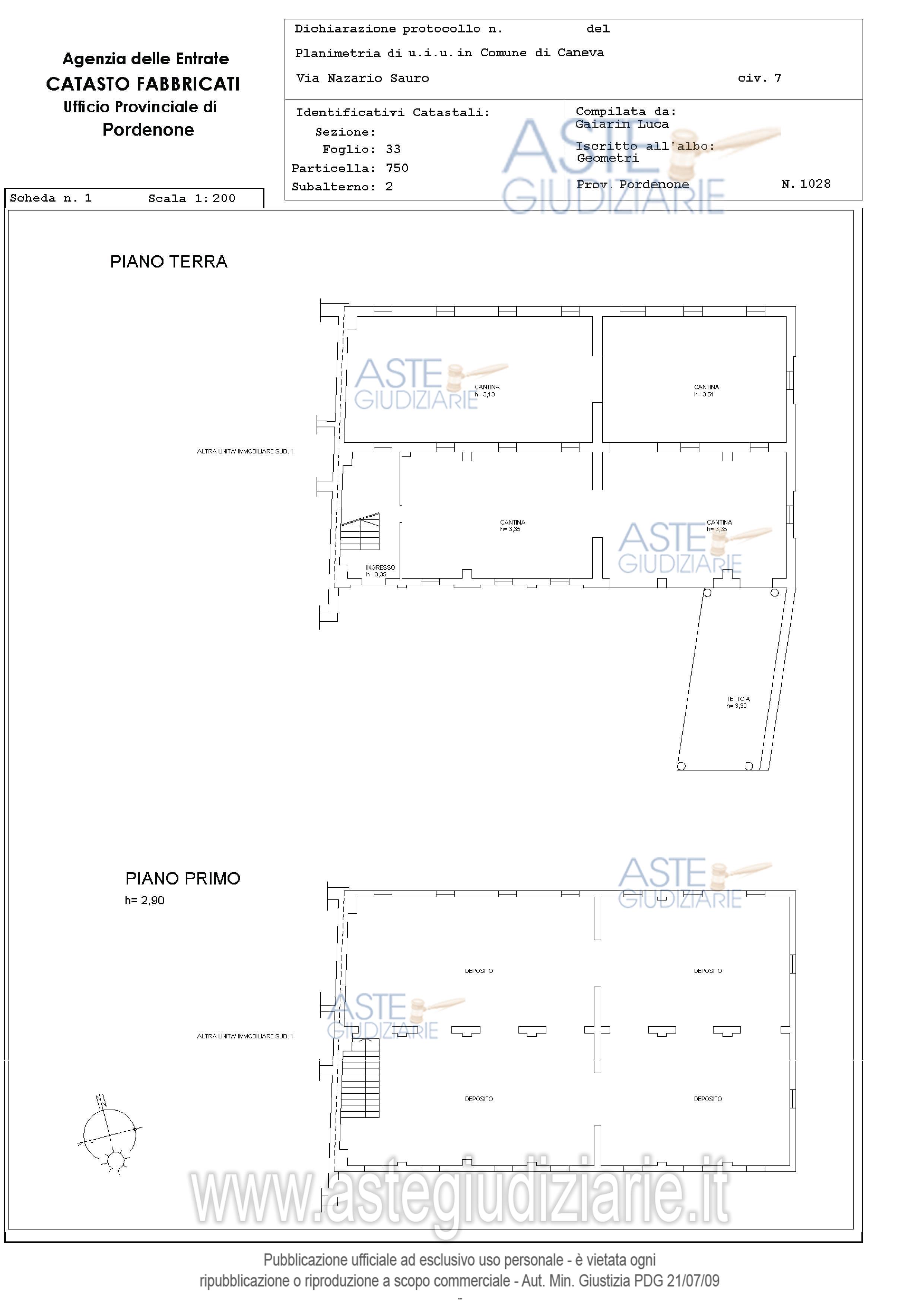
Vendita all'asta Senza incanto, con gara telematica sincrona mista - LOTTO 2: LOTTO SECONDO: Abitazione così composta: Piano terra con disimpegno, soggiorno, sala da pranzo e piccolo spazio a cucina - scala interna - Piano primo con 2 camere, bagno, lavanderia; Piano secondo con doppia soffitta con accesso dal vano scala interno della proprietà adiacente p.lla 700. Sarà cura dell’aggiudicatario del lotto, provvedere alla realizzazione di una scala retrattile interna che dal disimpegno del piano primo, conduca al piano soffitta così da eliminare l’attuale servitù di fatto. Prezzo base € 123.037,50 (offerta minima € 92.279,00). Data vendita 20/03/2026 ore 15:00. Giudice Dott. Elisa Tesco. Professionista delegato alla vendita Not. Giorgio Pertegato - Email "notaio@notaiopertegato.it". Custode Giudiziario Custode Giudiziario - Email "custodi@associazionenotarile.pn.it"; Tel. 3294536349. Rif. Tribunale di Pordenone - Contenzioso civile n. 385/2018

Superficie 211,00 mq
Vani 7,50
Bagni
Piano 0

Tipologia di vendita Giudiziaria
Modalità di vendita Sincrona mista
Termine presentazione offerte 01/01/1900 ore 00:00
Data e ora inizio gara 20/03/2026 ore 15:00
Codice ID astegiudiziarie.it 4343691
7,50
211,00
0
€ 123.038

Ti interessa questa vendita?

north_east

Clicca qui per essere indirizzato alla scheda sul sito di provenienza

Bene di astegiudiziarie.it