highlight_off
Riferimento annuncio 315770 info

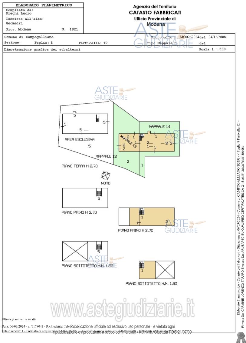
Appartamento Via Cristina, 8, 41011 CAMPOGALLIANO MO, Italia, 41011 Campogalliano (MO)

421,00
0
€ 69.000
Vendita all'asta Senza incanto, con gara telematica asincrona - LOTTO UNICO: Piena ed esclusiva proprietà di complesso immobiliare sito nel comune di Campogalliano (MO), Via Cristina n°8, costituito da fabbricato ad uso civile abitazione con magazzini-cantine con terreno circostante e disposto su più livelli collegati da scala interna, con ingresso da portico comune e con parte abitativa a piano terra. Nella parte ovest del fabbricato, con accesso dall’esterno vi sono tre cantine (di fronte all’edificio adiacente). Prezzo base € 69.000,00 (offerta minima € 51.750,00). Data inizio operazioni di vendita: 19/03/2026 ore 11:00. Professionista delegato alla vendita Dott. Luca Menetti - Email "lucamenetti@libero.it"; Cell. 3405815399. Custode Giudiziario Alex Manelli - Email "visiteimmobili@ivgmodena.it"; Tel. 059847301. Rif. Tribunale di Modena - Esecuzione immobiliare post legge 80 n. 6/2023

Superficie 421,00 mq
Vani
Bagni
Piano 0

Tipologia di vendita Giudiziaria
Modalità di vendita Asincrona telematica
Termine presentazione offerte 01/01/1900 ore 00:00
Data e ora inizio gara 19/03/2026 ore 11:00
Codice ID astegiudiziarie.it 4336051
421,00
0
€ 69.000

Ti interessa questa vendita?

north_east

Clicca qui per essere indirizzato alla scheda sul sito di provenienza

Bene di astegiudiziarie.it