highlight_off
Riferimento annuncio 264725 info

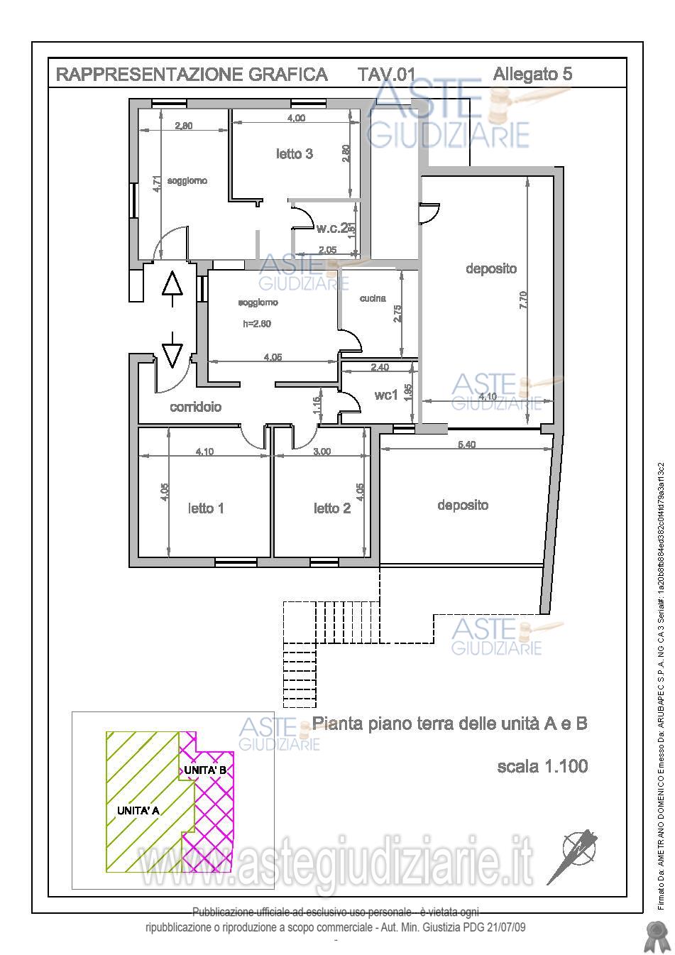
Appartamento Via Santa Caterina, Licusati SA, Italia, 84040 Camerota (SA)

6,50
223,00
0
€ 56.791
Vendita all'asta Senza incanto, con gara telematica asincrona - LOTTO UNICO: Immobile costituito da: Un Piano Terra del fabbricato che presenta in parte una destinazione abitativa individuata in seguito come unità A e, in parte, una destinazione di deposito-garage, individuata in seguito come unità B; ed un Primo Piano del fabbricato che presenta esclusivamente una destinazione abitativa ed è suddiviso in due unità individuate in seguito come C e D. Prezzo base € 56.791,31 (offerta minima € 42.593,48). Data inizio operazioni di vendita: 24/06/2026 ore 16:30. Giudice: Dott. Roberta Giglio. Professionista delegato alla vendita: Avv. Ugo Schiavo. Custode Giudiziario: Avv. Ugo Schiavo - Email "schiavostudiolagale@gmail.com"; Cell. 320/3429858. Rif. Tribunale di Vallo della Lucania - Esecuzione immobiliare post legge 80 n. 34/2022

Superficie 223,00 mq
Vani 6,50
Bagni
Piano 0

Tipologia di vendita Giudiziaria
Modalità di vendita Asincrona telematica
Termine presentazione offerte 23/06/2026 ore 12:00
Data e ora inizio gara 24/06/2026 ore 16:30
Codice ID astegiudiziarie.it 4298134
6,50
223,00
0
€ 56.791

Ti interessa questa vendita?

north_east

Clicca qui per essere indirizzato alla scheda sul sito di provenienza

Bene di astegiudiziarie.it