highlight_off
Riferimento annuncio 316566 info

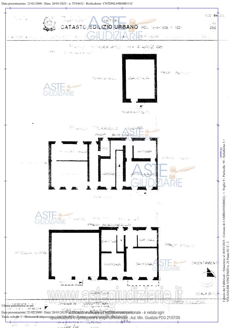
Appartamento Via Francesco V. Gaude, 10020 Cambiano TO, Italia, 10020 Cambiano (TO)

12,00
420,00
0
€ 96.000
Vendita all'asta Senza incanto, con gara telematica asincrona - LOTTO UNICO: Porzione di fabbricato residenziale elevato a due piani fuori terra, oltre a cantina, con annesso cortile privato e tettoia, il tutto entrostante a terreno di mq. 1232. Prezzo base € 96.000,00 (offerta minima € 72.000,00). Data inizio operazioni di vendita: 25/11/2025 ore 12:00. Giudice Anna Castellino. Professionista delegato alla vendita Not. Maria Cristina De Cesare - Email "mcdecesare@notariato.it"; Tel. 0114345113. Custode Giudiziario Ifir Piemonte Ivg Srl - Email "visite@ivgpiemonte.it"; Tel. 011482822. Rif. Tribunale di Torino - Espropriazione immobiliare (cartabia) n. 56/2025

Superficie 420,00 mq
Vani 12,00
Bagni
Piano 0

Tipologia di vendita Giudiziaria
Modalità di vendita Asincrona telematica
Termine presentazione offerte 01/01/1900 ore 00:00
Data e ora inizio gara 25/11/2025 ore 12:00
Codice ID astegiudiziarie.it 4337302
12,00
420,00
0
€ 96.000

Ti interessa questa vendita?

north_east

Clicca qui per essere indirizzato alla scheda sul sito di provenienza

Bene di astegiudiziarie.it