highlight_off
Riferimento annuncio 292852 info

Appartamento Via Vittorio Veneto, 285, 92020 Camastra AG, Italia, 92020 Camastra (AG)

6,00
25950,00
1
0
€ 41.766
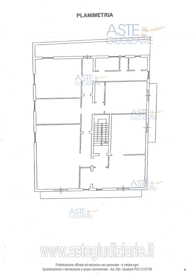
Vendita all'asta Senza incanto, con gara telematica sincrona mista - LOTTO UNICO: Piena proprietà per la quota di 1000/1000, di appartamento sito in Camastra (AG),Via Vittorio Veneto,285. Posto al piano primo, mq.259,5 circa suddivisi in n.6 locali, adibiti a: camere da letto, un salone, una cucina con angolo cottura, un salotto accanto alla cucina soggiorno, due wc e due ripostigli. Indicato al N.C.E.U, F.17, mapp.203 sub 4 cat. A/2. Proveniente per variazione territoriale dal foglio 97 del Comune di Naro. Provvisto di A.C.E. del 28/12/2014 da cui risulta la Classe energetica”B”. Prezzo base € 41.766,00 (offerta minima € 31.324,50). Data vendita 12/12/2025 ore 18:00. Professionista delegato alla vendita Dott. Domenica Zagrì - Email "domenicazagri@libero.it"; Cell. 3335019005; Tel. 3335019005. Custode Giudiziario Dott. Domenica Zagrì - Email "domenicazagri@libero.it"; Cell. 3335019005; Tel. 3335019005. Rif. Tribunale di Agrigento - Esecuzione immobiliare post legge 80 n. 245/2013

Superficie 25950,00 mq
Vani 6,00
Bagni 1
Piano 0

Tipologia di vendita Giudiziaria
Modalità di vendita Sincrona mista
Termine presentazione offerte 01/01/1900 ore 00:00
Data e ora inizio gara 12/12/2025 ore 18:00
Codice ID astegiudiziarie.it 414929
6,00
25950,00
1
0
€ 41.766

Ti interessa questa vendita?

north_east

Clicca qui per essere indirizzato alla scheda sul sito di provenienza

Bene di astegiudiziarie.it