highlight_off
Riferimento annuncio 304912 info

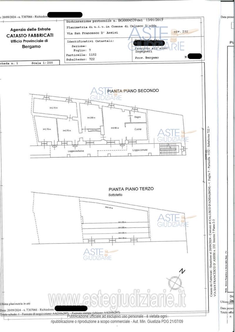
Appartamento Via San Francesco D'Assisi n. 232, 24033 Calusco d'Adda (BG)

8,00
239,00
2
€ 77.400
Vendita all'asta Senza incanto, con gara telematica asincrona - LOTTO UNICO: Appartamento sito al secondo piano da cui si accede dalla loggia esterna e direttamente al soggiorno alla cucina ed ad un bagno. Un piccolo disimpegno separa il soggiorno dalle diverse camere da letto. Inoltre dalla loggia si accede ad un locale ad uso deposito. Il locale sottotetto è raggiungibile da una scala a pioli. Cantina e autorimessa di pertinenza. Prezzo base € 77.400,00 (offerta minima € 58.050,00). Data inizio operazioni di vendita: 29/10/2025 ore 15:00. Giudice Dott. Vincenzo Domenico Scibetta. Professionista delegato alla vendita Avv. Avv. Giovanni Bertino - Email "segreteria@giovannibertino.it"; Tel. 035213033. Custode Giudiziario Avv. Avv. Giovanni Bertino - Email "segreteria@giovannibertino.it"; Tel. 035213033. Rif. Tribunale di Bergamo - Espropriazione immobiliare (cartabia) n. 342/2024

Superficie 239,00 mq
Vani 8,00
Bagni
Piano 2

Tipologia di vendita Giudiziaria
Modalità di vendita Asincrona telematica
Termine presentazione offerte 01/01/1900 ore 00:00
Data e ora inizio gara 29/10/2025 ore 15:00
Codice ID astegiudiziarie.it 4327747
8,00
239,00
2
€ 77.400

Ti interessa questa vendita?

north_east

Clicca qui per essere indirizzato alla scheda sul sito di provenienza

Bene di astegiudiziarie.it