highlight_off
Riferimento annuncio 308397 info

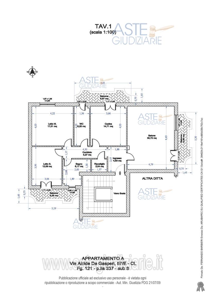
Appartamento Via Alcide de Gasperi, 57 E, 93100 Caltanissetta CL, Italia, 93100 Caltanissetta (CL)

6,00
122,00
2
€ 59.311
Vendita all'asta Senza incanto, con gara telematica sincrona mista - LOTTO 1: Piena proprietà di appartamento adibito a civile abitazione, sito a Caltanissetta, in via Alcide De Gasperi 57/E, censito al Catasto Fabbricati del Comune di Caltanissetta al Fg.121 - p.lla 337 - sub 8, Rendita: euro 418,33 - Zona censuaria 1, Categoria A/2, Classe 2, Consistenza 6 vani, piano 2 dell’edificio. L’appartamento si compone dei seguenti vani: ingresso, salone, cucina, wc, corridoio, ripostiglio, una camera da letto matrimoniale, una camera da letto singola, un bagno e tre balconi. Prezzo base € 59.311,00 (offerta minima € 44.484,00). Data vendita 27/11/2025 ore 16:00. Giudice Dott. Francesco Lauricella. Professionista delegato alla vendita Dott. Carlo Raimondi - Email "dott.carloraimondi@gmail.com"; Cell. 3333542131; Tel. 3333542131. Custode Giudiziario Dott. Carlo Raimondi - Email "dott.carloraimondi@gmail.com"; Cell. 3333542131; Tel. 3333542131. Rif. Tribunale di Caltanissetta - Espropriazione immobiliare (cartabia) n. 35/2024

Superficie 122,00 mq
Vani 6,00
Bagni
Piano 2

Tipologia di vendita Giudiziaria
Modalità di vendita Sincrona mista
Termine presentazione offerte 01/01/1900 ore 00:00
Data e ora inizio gara 27/11/2025 ore 16:00
Codice ID astegiudiziarie.it 4330339
6,00
122,00
2
€ 59.311

Ti interessa questa vendita?

north_east

Clicca qui per essere indirizzato alla scheda sul sito di provenienza

Bene di astegiudiziarie.it