highlight_off
Riferimento annuncio 305503 info

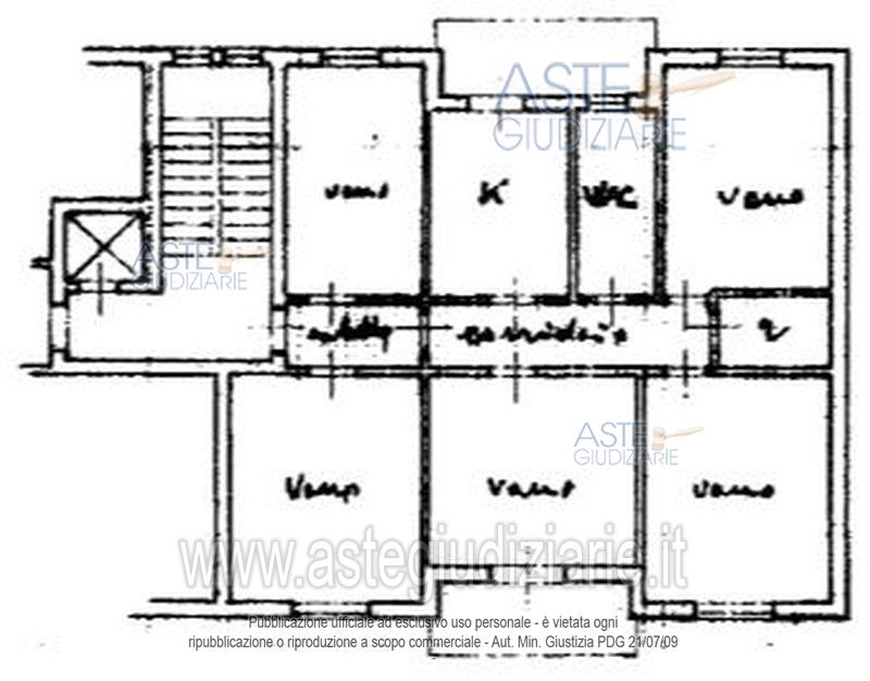
Appartamento V. F. Turati, 28, 93100 Caltanissetta CL, Italia, 93100 Caltanissetta (CL)

7,50
131,00
2
0
€ 55.088
Vendita all'asta Senza incanto, con gara telematica sincrona mista - LOTTO 1: Appartamento per civile abitazione al piano primo composto da 5 vani ed accessori. Prezzo base € 55.088,00 (offerta minima € 41.316,00). Data vendita 15/01/2026 ore 11:30. Giudice Lauricella. Professionista delegato alla vendita Avv. Lavinia Cordaro - Email "avinia.cordaro@gmail.com". Custode Giudiziario Avv. Lavinia Cordaro - Email "lavinia.cordaro@alice.it"; Tel. 0934680675. Rif. Tribunale di Caltanissetta - Esecuzione immobiliare post legge 80 n. 97/2017

Superficie 131,00 mq
Vani 7,50
Bagni 2
Piano 0

Tipologia di vendita Giudiziaria
Modalità di vendita Sincrona mista
Termine presentazione offerte 14/01/2026 ore 12:00
Data e ora inizio gara 15/01/2026 ore 11:30
Codice ID astegiudiziarie.it 4328154
7,50
131,00
2
0
€ 55.088

Ti interessa questa vendita?

north_east

Clicca qui per essere indirizzato alla scheda sul sito di provenienza

Bene di astegiudiziarie.it