highlight_off
Riferimento annuncio 301205 info

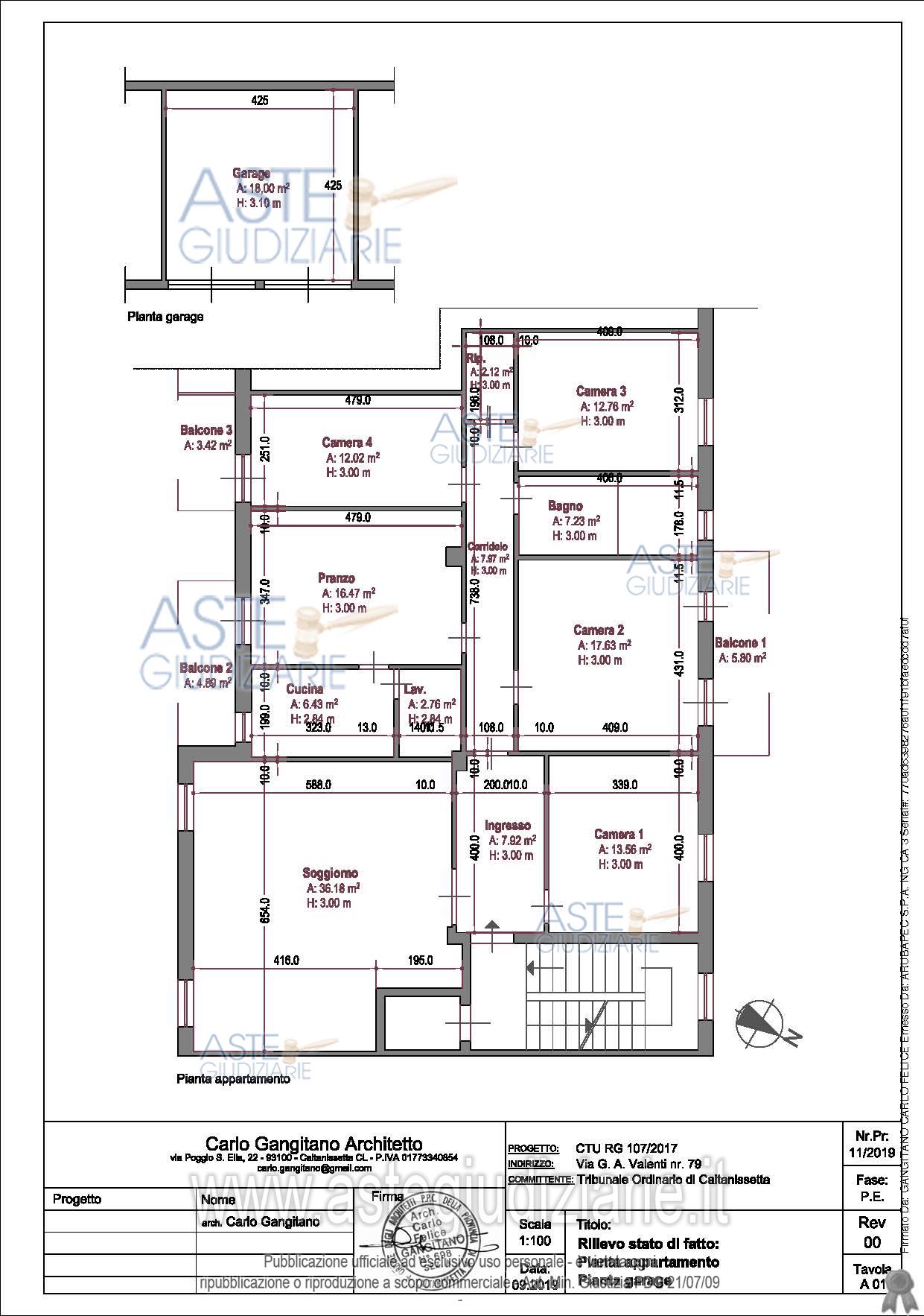
Appartamento Via Gabriele Amico Valenti, 72, 93100 Caltanissetta CL, Italia, 93100 Caltanissetta (CL)

7,00
190,00
0
€ 62.810
Vendita all'asta Senza incanto, con gara telematica sincrona mista - LOTTO UNICO: Piena proprietà di un immobile sito a Caltanissetta via A. Valenti n. 72 piano terzo Identificato al catasto Fabbricati - Fg. 126, Part. 586, Sub. 30, Zc. 1, Categoria A2 con rendita di € 619,75;Piena proprietà di un Box di 20 mq. Sito a Caltanissetta via A. Va-lenti Identificato al catasto Fabbricati - Fg. 126, Part. 586, sub. 12, Categoria C6 con rendita di € 99,16. Prezzo base € 62.810,00 (offerta minima € 47.107,50). Data vendita 11/12/2025 ore 16:30. Professionista delegato alla vendita Avv. Aldo Bellomo. Custode Giudiziario Avv. Aldo Bellomo - Email "bellomoaldo@gmail.com". Rif. Tribunale di Caltanissetta - Esecuzione immobiliare post legge 80 n. 107/2017

Superficie 190,00 mq
Vani 7,00
Bagni
Piano 0

Tipologia di vendita Giudiziaria
Modalità di vendita Sincrona mista
Termine presentazione offerte 10/12/2025 ore 12:00
Data e ora inizio gara 11/12/2025 ore 16:30
Codice ID astegiudiziarie.it 4324788
7,00
190,00
0
€ 62.810

Ti interessa questa vendita?

north_east

Clicca qui per essere indirizzato alla scheda sul sito di provenienza

Bene di astegiudiziarie.it