Riferimento annuncio 244377
        
    
    Appartamento Corso Umberto I, 5, 93100 Caltanissetta (CL)
                
                8,00
            
            
                
                161,84
            
            
                
                0
            
        
€ 51.739    
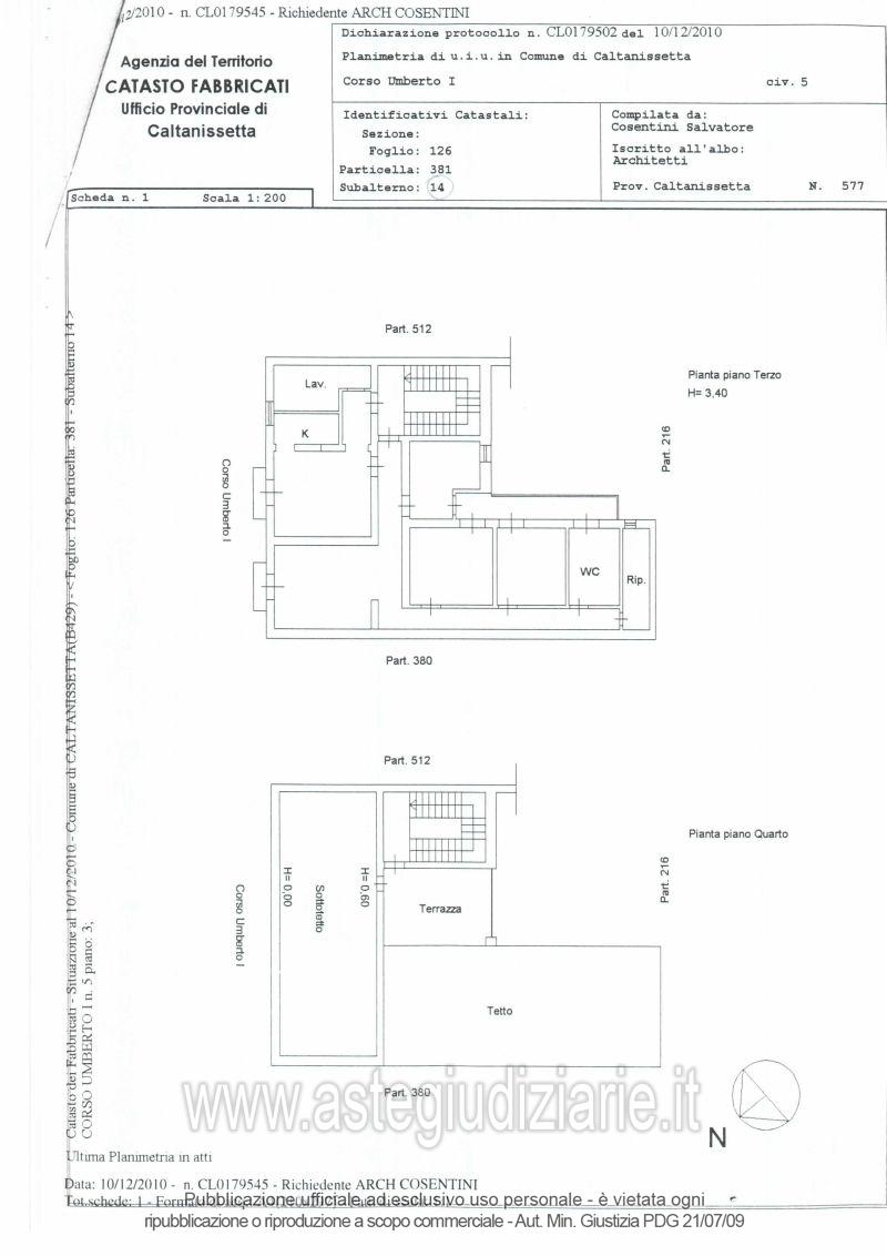
                Vendita in attesa dell'emissione del nuovo bando d'asta. LOTTO UNICO: Immobile al terzo piano composto da: cucina, cucina-pranzo, lavanderia, soggiorno, due camere, una camera matrimoniale, bagno, ripostiglio, corridoio e tre balconi, nonché da una terrazza posta al piano soprastante (quarto piano) a cui si accede dal vano scala, da un sottotetto con accesso dalla predetta terrazza e da un'aerea adibita a tetto. Ultimo prezzo base € 51.738,70 (offerta minima € 38.804,02). Professionista delegato alla vendita Avv. Gaetano Fabio Catalano - Cell. 3384206393; Tel. 0934584954. Custode Giudiziario Avv. Gaetano Fabio Catalano - Email "gfabiocatalano@virgilio.it"; Cell. 3384206393; Tel. 0934584954.  Rif. Tribunale di Caltanissetta - Esecuzione immobiliare post legge 80 n. 53/2009
            
   
| Superficie | 161,84 mq | 
|---|---|
| Vani | 8,00 | 
| Bagni | |
| Piano | 0 | 
| Tipologia di vendita | Giudiziaria | 
|---|---|
| Modalità di vendita | Sincrona mista | 
| Termine presentazione offerte | 08/07/2025 ore 12:00 | 
| Data e ora inizio gara | 09/07/2025 ore 16:30 | 
 
                         
                         
                         
                         
                         
                         
                         
                         
                         
                         
                         
                         
                         
                         
                         
                         
                         
                        