highlight_off
Riferimento annuncio 330676 info

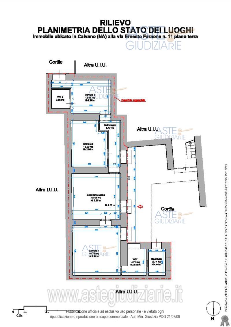
Appartamento via Ernesto Faraone n. 11, 80023 Caivano (NA)

5,00
90,00
2
0
€ 53.000
Vendita all'asta Senza incanto, con gara telematica asincrona - LOTTO UNICO: Piena ed intera proprietà di abitazione di tipo popolare sita in via Ernesto Faraone n. 11 – Comune di Caivano (NA) – piano terra composta da cucina-soggiorno, due bagni, tre camere e da un ripostiglio esterno. Prezzo base € 53.000,00 (offerta minima € 39.750,00). Data inizio operazioni di vendita: 16/06/2026 ore 11:30. Giudice: Dott. Antonella Paone. Professionista delegato alla vendita: Avv. Michelina Pratillo. Custode Giudiziario: Avv. Michelina Pratillo - Email "michelina.pratillo@virgilio.it". Rif. Tribunale di Napoli Nord - Espropriazione immobiliare (cartabia) n. 193/2024

Superficie 90,00 mq
Vani 5,00
Bagni 2
Piano 0

Tipologia di vendita Giudiziaria
Modalità di vendita Asincrona telematica
Termine presentazione offerte 01/01/1900 ore 00:00
Data e ora inizio gara 16/06/2026 ore 11:30
Codice ID astegiudiziarie.it 4348354
5,00
90,00
2
0
€ 53.000

Ti interessa questa vendita?

north_east

Clicca qui per essere indirizzato alla scheda sul sito di provenienza

Bene di astegiudiziarie.it