highlight_off
Riferimento annuncio 318691 info

Appartamento Via Bragni 21, 35010 Cadoneghe (PD)

126,00
0
€ 115.000
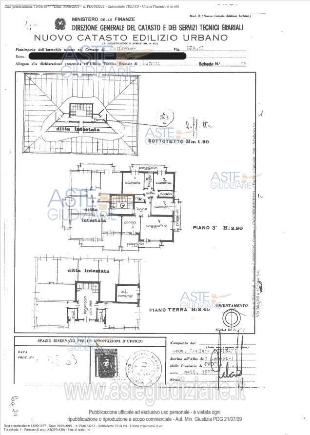
Vendita all'asta Senza incanto, con gara telematica sincrona - LOTTO 1: Appartamento al piano terzo composto da ingresso, cucina, soggiorno-pranzo,poggiolo, disimpegno, ripostiglio, due bagni, tre camere e due poggioli per una superficie netta mq 126,20. Soffitta al p. Prezzo base € 115.000,00 (offerta minima € 86.250,00). Data vendita 14/01/2026 ore 15:15. Giudice Giovanni G Amenduni. Professionista delegato alla vendita Dott. Monica Incerti - Email "incerti.monica@gmail.com". Custode Giudiziario Dott. Monica Incerti - Email "incerti.monica@gmail.com"; Tel. 0498763060. Rif. Tribunale di Padova - Esecuzione immobiliare post legge 80 n. 504/2018

Superficie 126,00 mq
Vani
Bagni
Piano 0

Tipologia di vendita Giudiziaria
Modalità di vendita Sincrona telematica
Termine presentazione offerte 01/01/1900 ore 00:00
Data e ora inizio gara 14/01/2026 ore 15:15
Codice ID astegiudiziarie.it 4338553
126,00
0
€ 115.000

Ti interessa questa vendita?

north_east

Clicca qui per essere indirizzato alla scheda sul sito di provenienza

Bene di astegiudiziarie.it