highlight_off
Riferimento annuncio 318917 info

Appartamento Via Galileo Galilei, 6, 80031 Brusciano NA, Italia, 80031 Brusciano (NA)

5,50
148,00
1
0
€ 104.000
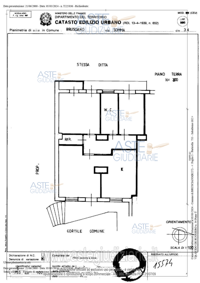
Vendita all'asta Senza incanto, con gara telematica asincrona - LOTTO UNICO: Diritto di proprietà per la quota di 1/1 di unità immobiliare costituita da un’abitazione posta al piano rialzato, con accesso semi indipendente attraverso la scala ed il ballatoio al sub 12 (b.c.n.c.), composta da ingresso, zona pranzo/cucina, tre camere, due bagni di cui uno in camera, ripostiglio, da una piccola area esterna e da un deposito al piano seminterrato, accessibile dalla rampa. Prezzo base € 104.000,00 (offerta minima € 78.000,00). Data inizio operazioni di vendita: 13/01/2026 ore 15:00. Professionista delegato alla vendita Avv. Lucia Cerqua - Email "avv.luciacerqua@hotmail.it"; Cell. 3493555470; Tel. 0812159462. Custode Giudiziario Avv. Lucia Cerqua - Email "avv.luciacerqua@hotmail.it"; Cell. 3493555470; Tel. 0812159462. Rif. Tribunale di Nola - Espropriazione immobiliare (cartabia) n. 6/2024

Superficie 148,00 mq
Vani 5,50
Bagni 1
Piano 0

Tipologia di vendita Giudiziaria
Modalità di vendita Asincrona telematica
Termine presentazione offerte 12/01/2026 ore 23:59
Data e ora inizio gara 13/01/2026 ore 15:00
Codice ID astegiudiziarie.it 4337912
5,50
148,00
1
0
€ 104.000

Ti interessa questa vendita?

north_east

Clicca qui per essere indirizzato alla scheda sul sito di provenienza

Bene di astegiudiziarie.it