highlight_off
Riferimento annuncio 313232 info

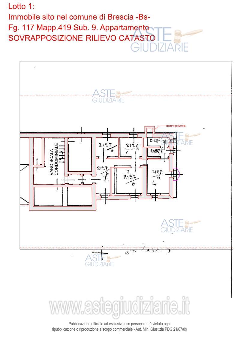
Appartamento Via Francesco lana, 20, 25100 Brescia (BS)

5,00
0
€ 74.600
Vendita all'asta Senza incanto, con gara telematica asincrona - LOTTO UNICO: Appartamento al terzo piano inserito in immobile a blocco con corte. Prezzo base € 74.600,00 (offerta minima € 55.950,00). Data inizio operazioni di vendita: 24/10/2025 ore 12:30. Giudice Giudice Dell'esecuzione. Professionista delegato alla vendita Dott. Erika Gentili - Email "info.bsimmobiliare@gmail.com". Custode Giudiziario Dott. Erika Gentili - Email "info.bsimmobiliare@gmail.com"; Tel. 0309383421. Rif. Tribunale di Brescia - Espropriazione immobiliare (cartabia) n. 529/2023

Superficie mq
Vani 5,00
Bagni
Piano 0

Tipologia di vendita Giudiziaria
Modalità di vendita Asincrona telematica
Termine presentazione offerte 01/01/1900 ore 00:00
Data e ora inizio gara 24/10/2025 ore 12:30
Codice ID astegiudiziarie.it 4334616
5,00
0
€ 74.600

Ti interessa questa vendita?

north_east

Clicca qui per essere indirizzato alla scheda sul sito di provenienza

Bene di astegiudiziarie.it