Riferimento annuncio 269126
        
    
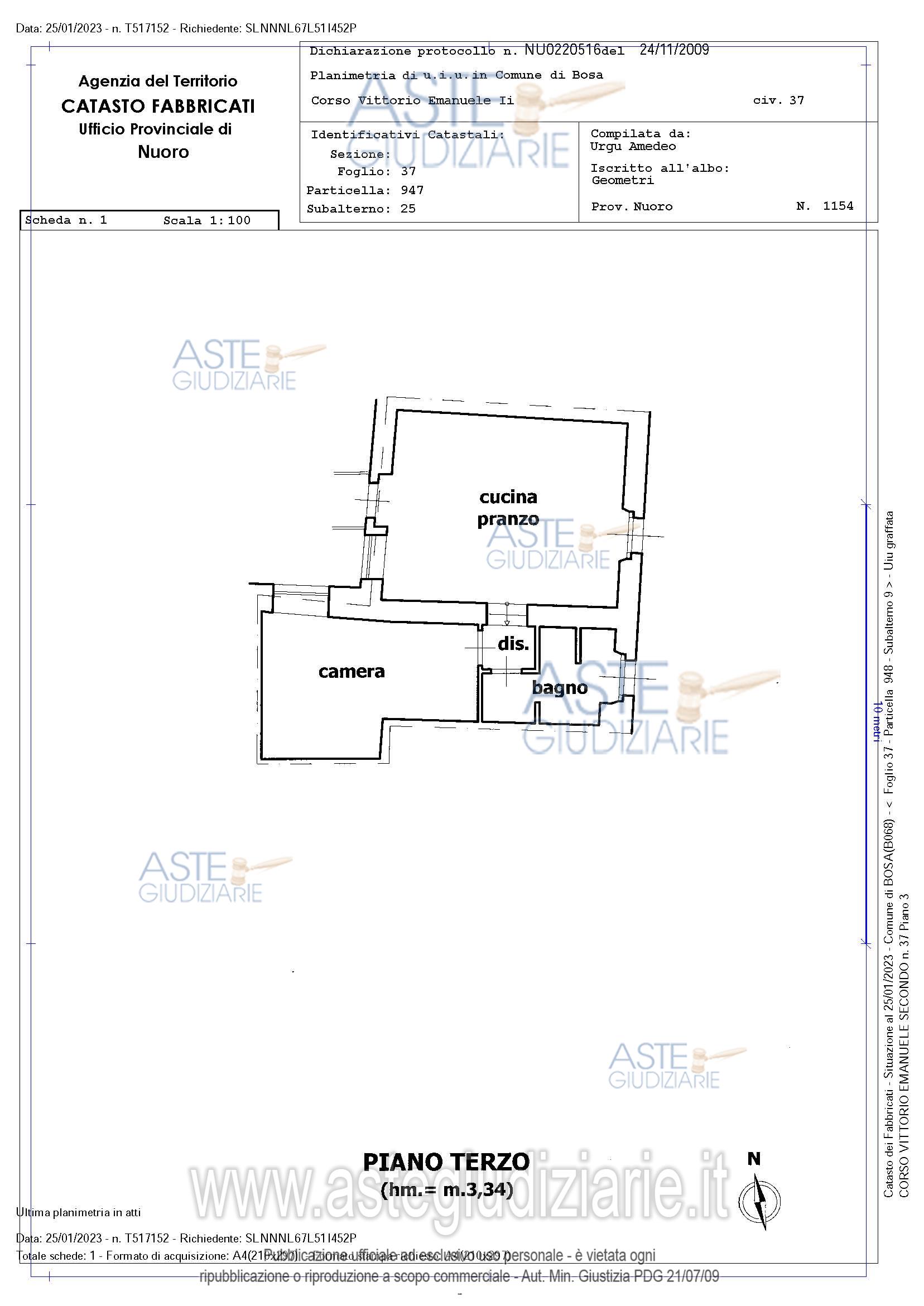
    Appartamento Corso Vittorio Emanuele II n. 37,, 08013 Bosa (OR)
                
                3,00
            
            
                
                80,00
            
            
                
                0
            
        
€ 63.204    
                Vendita in attesa dell'emissione del nuovo bando d'asta. LOTTO 12: Appartamento ubicato a Bosa (OR) - Corso Vittorio Emanuele II n. 37, piano 3. Ultimo prezzo base € 63.204,00 (offerta minima € 47.403,00). Curatore Dott. Alberto Ceresa - Email "concorsuale@ceresastudio.com"; Tel. 079230340.  Rif. Tribunale di Cagliari - Liquidazione giudiziale(cci) n. 5/2022
            
   
| Superficie | 80,00 mq | 
|---|---|
| Vani | 3,00 | 
| Bagni | |
| Piano | 0 | 
| Tipologia di vendita | Giudiziaria | 
|---|---|
| Modalità di vendita | Asincrona telematica | 
| Termine presentazione domande | 01/01/1900 ore 00:00 | 
| Data e ora inizio gara | 22/10/2025 ore 16:00 |