highlight_off
Riferimento annuncio 253126 info

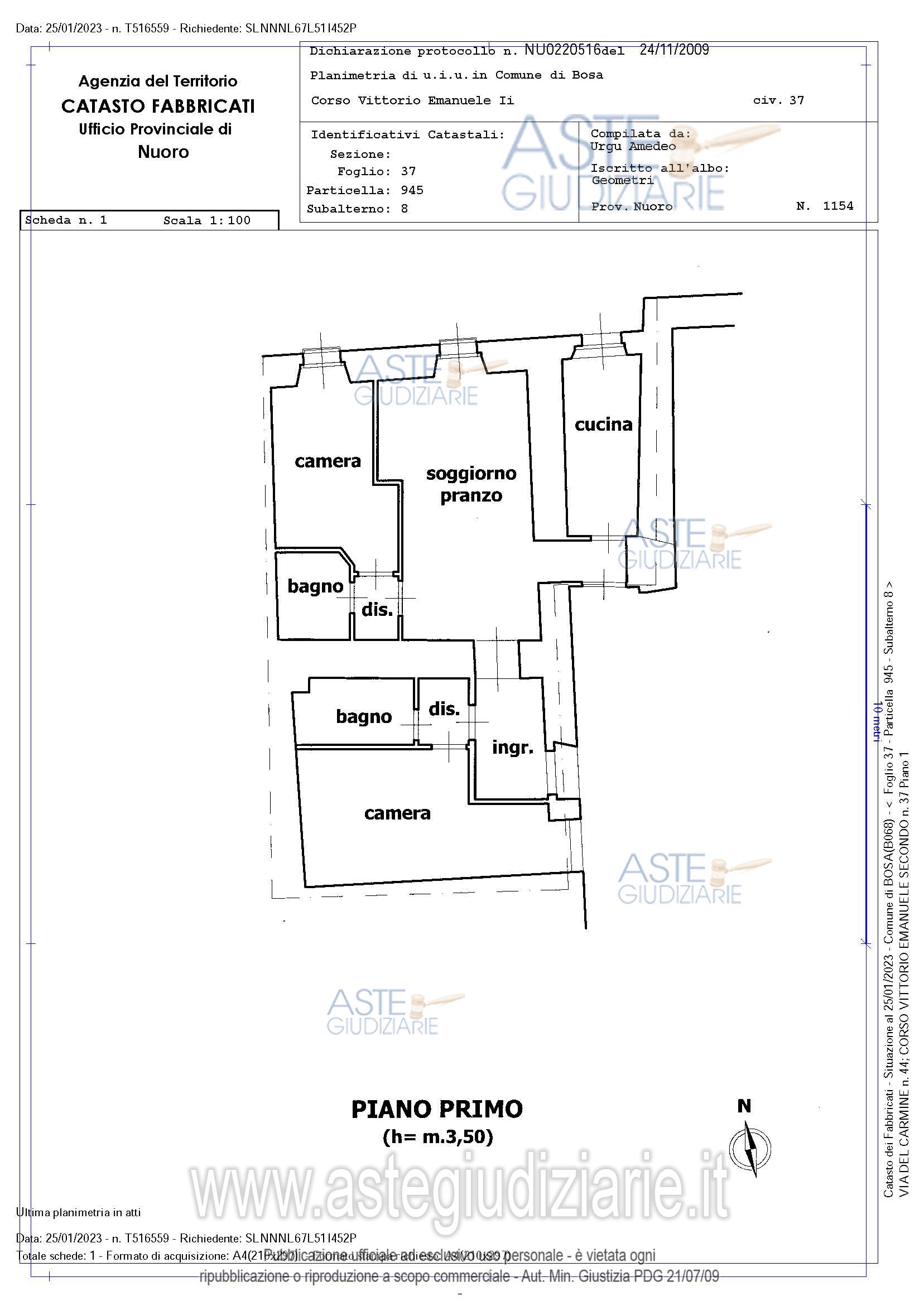
Appartamento Corso Vittorio Emanuele II n. 37, piano 3, 08013 Bosa (OR)

98,00
0
€ 96.447
Vendita all'asta Competitiva, con gara telematica asincrona - LOTTO 11: Appartamento ubicato a Bosa (OR) - Corso Vittorio Emanuele II n. 37, piano 3. Prezzo base € 96.447,00 (offerta minima € 72.335,00). Data inizio operazioni di vendita: 10/06/2026 ore 16:00. Curatore: Dott. Alberto Ceresa - Email "concorsuale@ceresastudio.com"; Tel. 079/230340. Rif. Tribunale di Cagliari - Liquidazione giudiziale(cci) n. 5/2022

Superficie 98,00 mq
Vani
Bagni
Piano 0

Tipologia di vendita Giudiziaria
Modalità di vendita Asincrona telematica
Termine presentazione domande 01/01/1900 ore 00:00
Data e ora inizio gara 10/06/2026 ore 16:00
Codice ID astegiudiziarie.it 4287482
98,00
0
€ 96.447

Ti interessa questa vendita?

north_east

Clicca qui per essere indirizzato alla scheda sul sito di provenienza

Bene di astegiudiziarie.it