highlight_off
Riferimento annuncio 295935 info

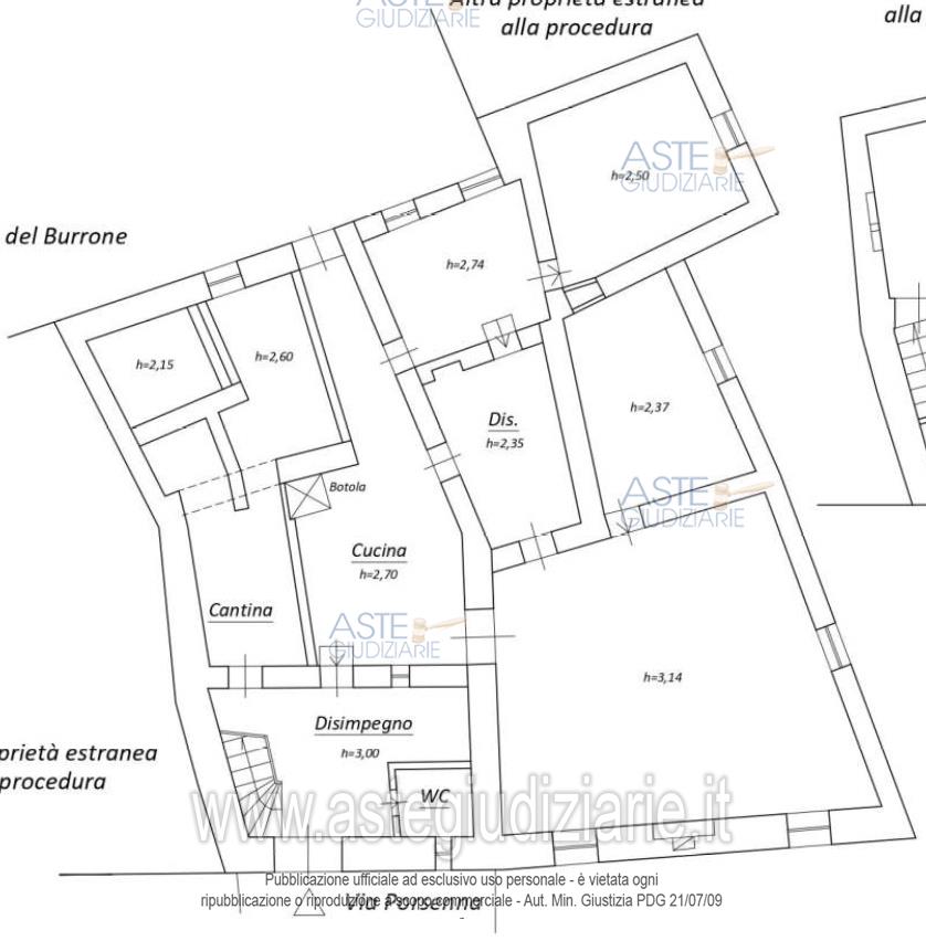
Appartamento Via Porsenna, s.n.c., 02021 Borgorose (RI)

0
€ 30.702
Vendita all'asta Senza incanto, con gara telematica asincrona - LOTTO UNICO: APPARTAMENTO SU 3 LIVELLI DI FABBRICATO DI PIU' AMPIA CONSISTENZA, SITO NEL CENTRO STORICO DI CASTELMENARDO FRAZ. DI BORGOROSE (RI). PER MAGGIORI INFORMAZIONI VISUALIZZARE AVVISO DI VENDITA E PERIZIA. Prezzo base € 30.702,38 (offerta minima € 23.026,78). Data inizio operazioni di vendita: 17/12/2025 ore 12:15. Giudice Barbara Vicario. Professionista delegato alla vendita Avv. Anna Rita Rufini - Email "avvrufini23@gmail.com"; Cell. 3397267462; Tel. 0746201906. Custode Giudiziario Avv. Anna Rita Rufini - Email "avvrufini23@gmail.com"; Cell. 3397267462. Rif. Tribunale di Rieti - Espropriazione immobiliare (cartabia) n. 85/2023

Superficie mq
Vani
Bagni
Piano 0

Tipologia di vendita Giudiziaria
Modalità di vendita Asincrona telematica
Termine presentazione offerte 01/01/1900 ore 00:00
Data e ora inizio gara 17/12/2025 ore 12:15
Codice ID astegiudiziarie.it 4320733
0
€ 30.702

Ti interessa questa vendita?

north_east

Clicca qui per essere indirizzato alla scheda sul sito di provenienza

Bene di astegiudiziarie.it