highlight_off
Riferimento annuncio 126792 info

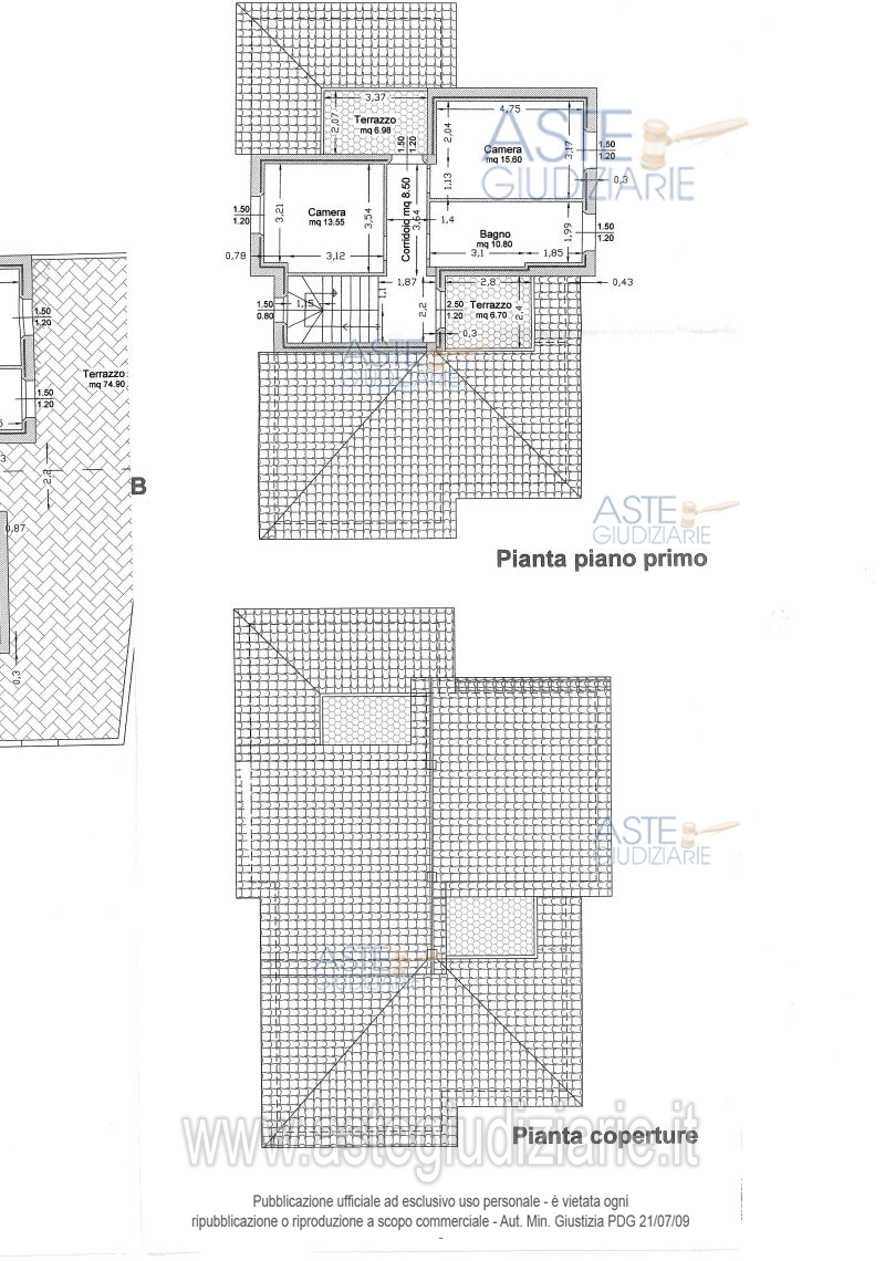
Appartamento Via Don Giuliano Calvisi 12, 08021 Bitti (NU)

1,50
21,00
0
€ 28.000
Vendita in attesa dell'emissione del nuovo bando d'asta. LOTTO 1: Fabbricato civile abitazione sito in Bitti (NU). Ultimo prezzo base € 28.000,00 (offerta minima € 21.000,00). Professionista delegato alla vendita Dott. Agostino Galizia - Email "agostinogalizia@studiogaliziaepinna.it"; Cell. 3478581430; Tel. 070482451. Custode Giudiziario Per Visite Ivg Tempio - Email "visite.ivgnuoro@gmail.com". Rif. Tribunale di Nuoro - Esecuzione immobiliare post legge 80 n. 64/2019

Superficie 21,00 mq
Vani 1,50
Bagni
Piano 0

Tipologia di vendita Giudiziaria
Modalità di vendita Asincrona telematica
Termine presentazione offerte 01/01/1900 ore 00:00
Data e ora inizio gara 31/07/2025 ore 12:00
Codice ID astegiudiziarie.it 4235745
1,50
21,00
0
€ 28.000

Ti interessa questa vendita?

north_east

Clicca qui per essere indirizzato alla scheda sul sito di provenienza

Bene di astegiudiziarie.it