highlight_off
Riferimento annuncio 254768 info

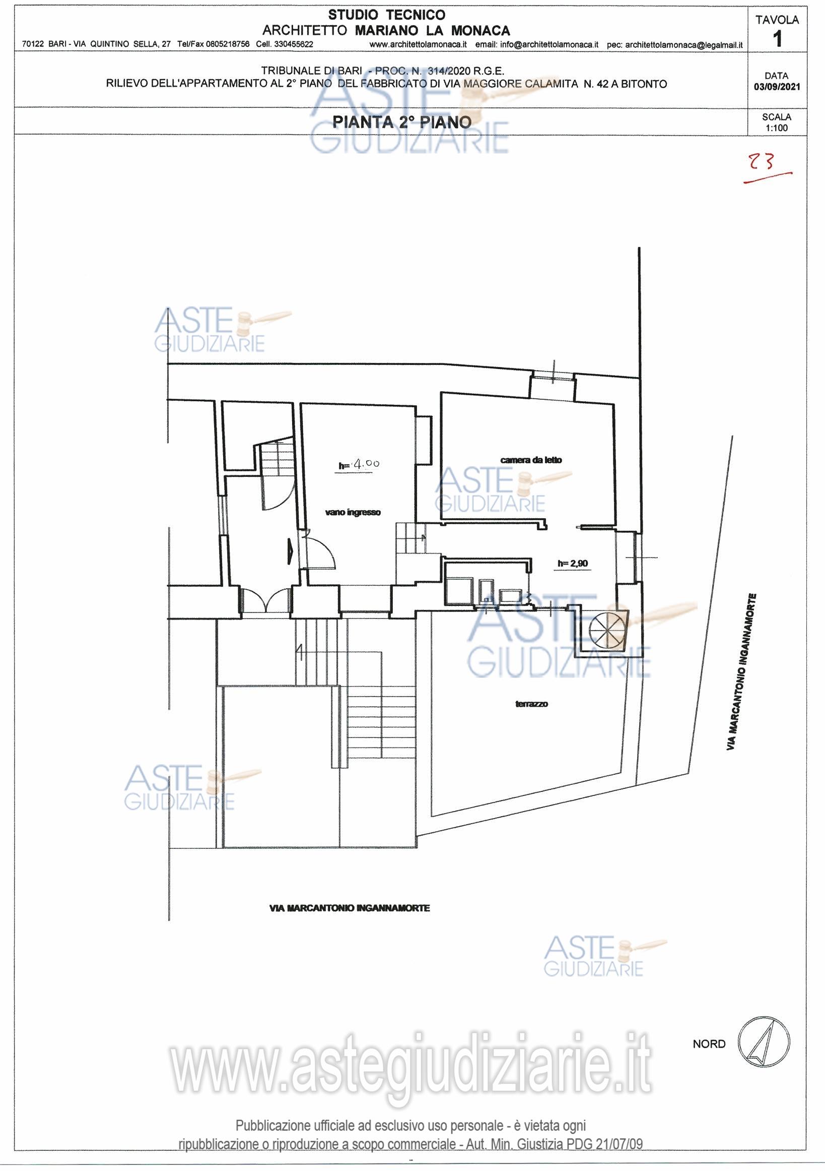
Appartamento Via Maggiore Calamita n. 42, 70032 Bitonto (BA)

0
€ 29.109
Vendita all'asta Senza incanto, con gara telematica asincrona - LOTTO UNICO: Appartamento al secondo piano composto da tre vani ed accessori posti su due piani comunicanti tra loro tramite una scala a chiocciola. Dotato al terzo piano sul lastrico solare di locale soffitta. Prezzo base € 29.109,37 (offerta minima € 21.832,02). Data inizio operazioni di vendita: 15/09/2026 ore 15:30. Giudice: Dott. Marisa Attollino. Professionista delegato alla vendita: Avv. Grazia D'alonzo - Email "grazia.dalonzo@gmail.com". Custode Giudiziario: Avv. Grazia D'alonzo - Email "grazia.dalonzo@gmail.com". Rif. Tribunale di Bari - Esecuzione immobiliare post legge 80 n. 314/2020

Superficie mq
Vani
Bagni
Piano 0

Tipologia di vendita Giudiziaria
Modalità di vendita Asincrona telematica
Termine presentazione offerte 01/01/1900 ore 00:00
Data e ora inizio gara 15/09/2026 ore 15:30
Codice ID astegiudiziarie.it 4289015
0
€ 29.109

Ti interessa questa vendita?

north_east

Clicca qui per essere indirizzato alla scheda sul sito di provenienza

Bene di astegiudiziarie.it