highlight_off
Riferimento annuncio 311732 info

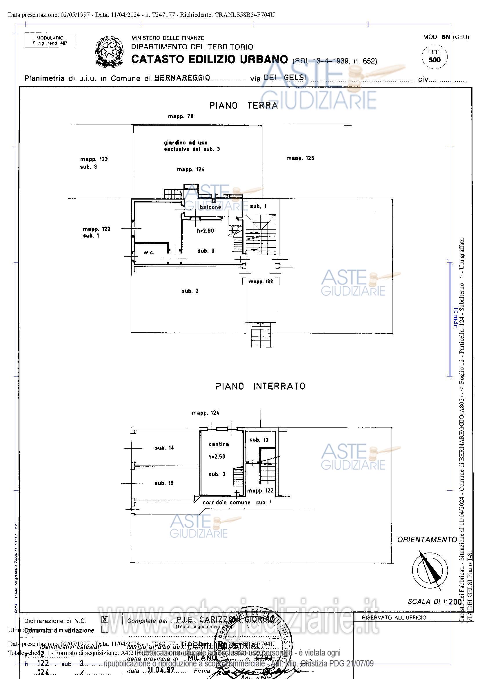
Appartamento Via dei Gelsi 3, 20044 Bernareggio (MB)

5,00
94,60
1
0
€ 85.200
Vendita all'asta Senza incanto, con gara telematica sincrona - LOTTO 18: Appartamento, P.T./rialzato, sup. comm. mq. 94,60, collegato a vano cantinato P.S1 adibito ad uso abitativo non autorizzato. Annesso giardino. PER L’ASSISTENZA ALLA PARTECIPAZIONE ALL’ASTA DEI BENI IMMOBILI E MOBILI CI SI PUO’ RIVOLGERE ALL’I.V.G. DI MONZA. IL TRIBUNALE DI MONZA NON HA CONFERITO ALCUN INCARICO A INTERMEDIARI/ AGENZIE IMMOBILIARI PER LA PUBBLICITÀ GIUDIZIARIA E L’ASSISTENZA ALLA PARTECIPAZIONE ALL’ASTA. Prezzo base € 85.200,00 (offerta minima € 63.900,00). Data vendita 30/01/2026 ore 15:00. Giudice Francesco Ambrosio. Professionista delegato alla vendita Dott. Maria Cristina Abbiati - Email "mc.abbiati@studiodottabbiati.it"; Tel. 0362343365. Custode Giudiziario Dott. Maria Cristina Abbiati - Email "mc.abbiati@studiodottabbiati.it"; Tel. 0362343365. Rif. Tribunale di Monza - Esecuzione immobiliare post legge 80 n. 363/2023

Superficie 94,60 mq
Vani 5,00
Bagni 1
Piano 0

Tipologia di vendita Giudiziaria
Modalità di vendita Sincrona telematica
Termine presentazione offerte 28/01/2026 ore 13:00
Data e ora inizio gara 30/01/2026 ore 15:00
Codice ID astegiudiziarie.it 4333302
5,00
94,60
1
0
€ 85.200

Ti interessa questa vendita?

north_east

Clicca qui per essere indirizzato alla scheda sul sito di provenienza

Bene di astegiudiziarie.it