Riferimento annuncio 314436
        
    
    Appartamento Via Solata, 9, 24129 Bergamo BG, Italia, 24100 Bergamo (BG)
                
                0
            
        
€ 411.500    
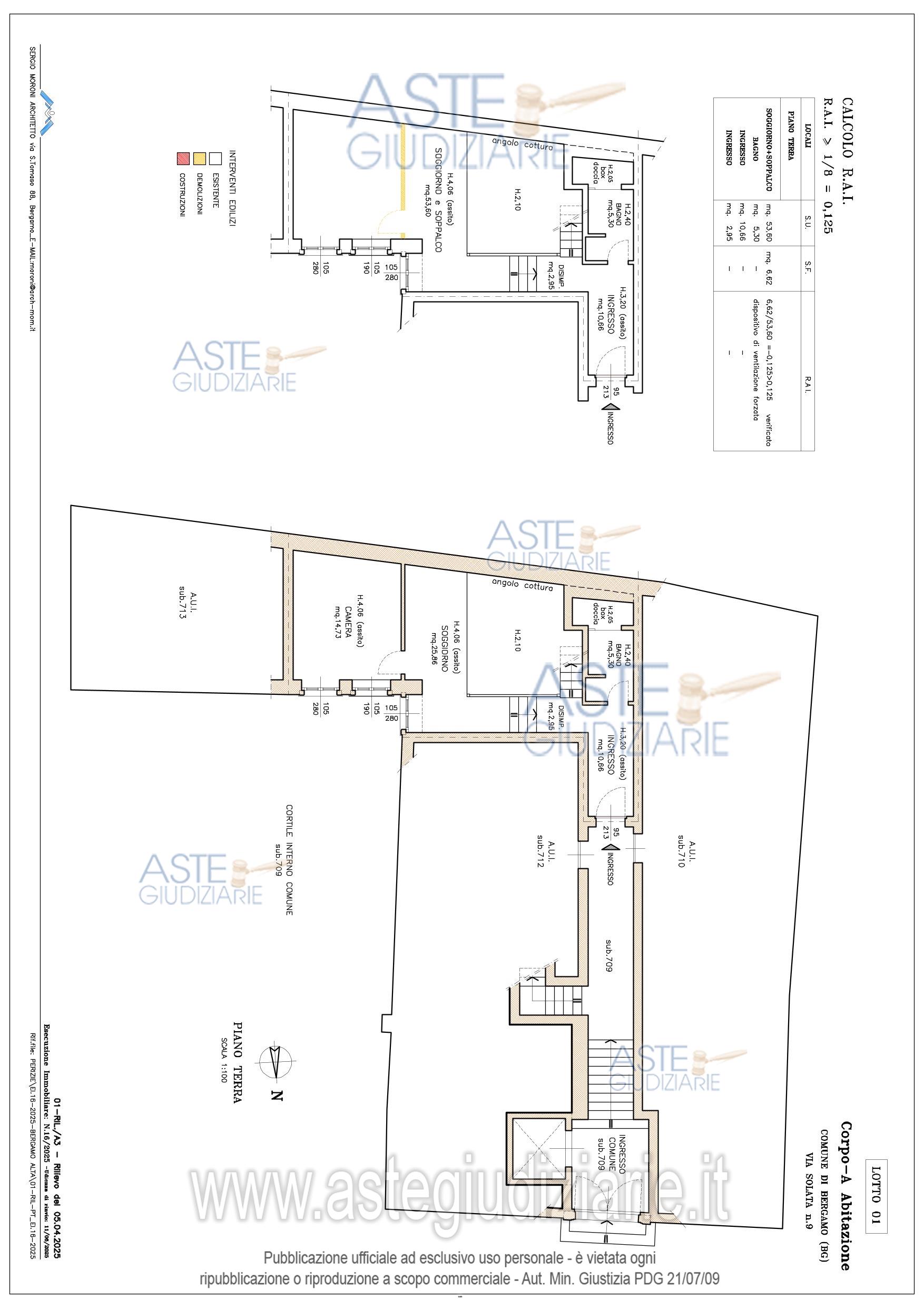
                Vendita all'asta Senza incanto, con gara telematica asincrona - LOTTO UNICO:  Intera piena proprietà di appartamento posto al piano terra o piano rialzato, raggiungibile dall’ingresso condominiale attraverso una prima rampa della scala comune interna. Ampia Autorimessa posta al secondo piano interrato, raggiungibile dall’ingresso carrabile attraverso una piattaforma di sollevamento per autoparcheggio meccanizzato e dalla scala interna condominiale con rispettivo ascensore. Prezzo base € 411.500,00 (offerta minima € 308.625,00). Data inizio operazioni di vendita: 26/11/2025 ore 14:30. Professionista delegato alla vendita Dott. Marco Scuri - Email "segreteria@studioscuri.it"; Tel. 035232207. Custode Giudiziario Dott. Marco Scuri - Email "segreteria@studioscuri.it"; Tel. 035232207.  Rif. Tribunale di Bergamo - Espropriazione immobiliare (cartabia) n. 16/2025
            
   
| Superficie | mq | 
|---|---|
| Vani | |
| Bagni | |
| Piano | 0 | 
| Tipologia di vendita | Giudiziaria | 
|---|---|
| Modalità di vendita | Asincrona telematica | 
| Termine presentazione offerte | 01/01/1900 ore 00:00 | 
| Data e ora inizio gara | 26/11/2025 ore 14:30 | 
 
                         
                         
                         
                         
                         
                         
                         
                         
                         
                         
                         
                         
                         
                         
                         
                         
                        