highlight_off
Riferimento annuncio 331492 info

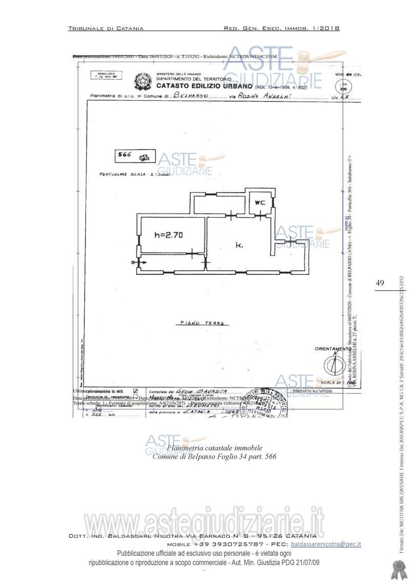
Appartamento Via Rosina Anselmi, 27, 95032 Belpasso (CT)

3,50
85,00
0
€ 15.000
Vendita all'asta Senza incanto, con gara telematica sincrona mista - LOTTO UNICO: Fabbricato adibito a civile abitazione ad una elevazione fuori terra, indipendente composto da ampio soggiorno-living che si apre sull’ingresso con cucina a vista (50 mq.), altri quattro vani (in tutto, 70,90 mq.), terrazzo (78 mq.) corridoio-disimpegno (7,20 mq.), bagno (8,50 mq.), ripostiglio (5 mq.) e locale scala per sottotetto (4,80 mq.). Prezzo base € 15.000,00 (offerta minima € 11.250,00). Data vendita 17/06/2026 ore 11:30. Giudice: Nelly Gaia Mangiameli. Professionista delegato alla vendita: Avv. Luca Malfitano - Email "studiomalfitano@gmail.com". Custode Giudiziario: Avv. Luca Malfitano - Email "studiomalfitano@gmail.com". Rif. Tribunale di Catania - Esecuzione immobiliare post legge 80 n. 1/2018

Superficie 85,00 mq
Vani 3,50
Bagni
Piano 0

Tipologia di vendita Giudiziaria
Modalità di vendita Sincrona mista
Termine presentazione offerte 16/06/2026 ore 13:00
Data e ora inizio gara 17/06/2026 ore 11:30
Codice ID astegiudiziarie.it 4348916
3,50
85,00
0
€ 15.000

Ti interessa questa vendita?

north_east

Clicca qui per essere indirizzato alla scheda sul sito di provenienza

Bene di astegiudiziarie.it