Riferimento annuncio 318252
        
    
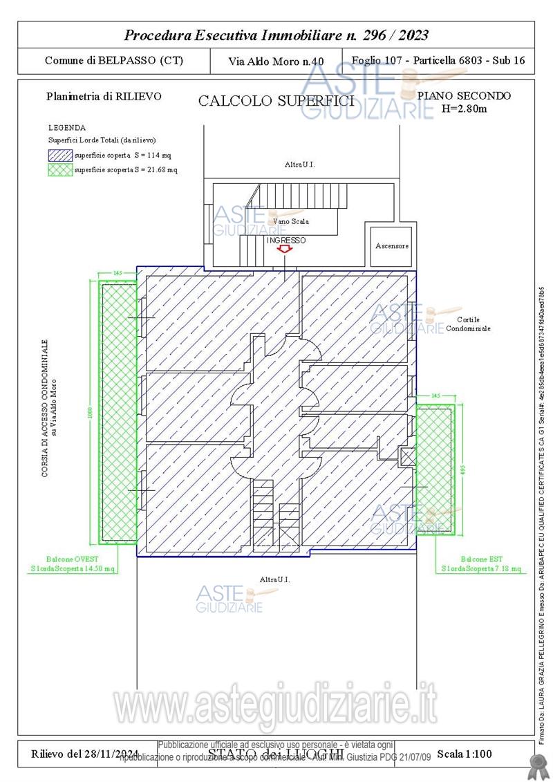
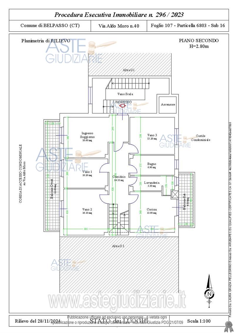
    Appartamento Via Terza Strada, snc, 95032 Belpasso (CT)
                
                5,00
            
            
                
                100,00
            
            
                
                0
            
        
€ 193.400    
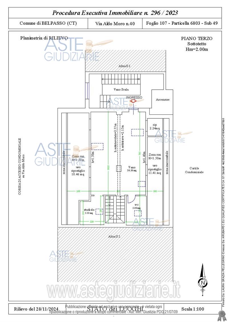
                Vendita all'asta Senza incanto, con gara telematica sincrona - LOTTO UNICO:  Lotto unico composto da: Appartamento al piano secondo di vani 5; Garage al piano primo sottostrada di circa 39 metri quadrati; Locale deposito al piano terzo di circa 58 metri quadrati. Prezzo base € 193.400,00 (offerta minima € 145.050,00). Data vendita 23/01/2026 ore 11:00. Giudice Maria Angela Chisari. Professionista delegato alla vendita Avv. Yaneth Consalvo - Email "avec2016@outlook.it"; Tel. 095507762. Custode Giudiziario  Avv. Yaneth Consalvo - Email "avec2016@outlook.it"; Tel. 095507762.  Rif. Tribunale di Catania - Espropriazione immobiliare (cartabia) n. 296/2023
            
   
| Superficie | 100,00 mq | 
|---|---|
| Vani | 5,00 | 
| Bagni | |
| Piano | 0 | 
| Tipologia di vendita | Giudiziaria | 
|---|---|
| Modalità di vendita | Sincrona telematica | 
| Termine presentazione offerte | 01/01/1900 ore 00:00 | 
| Data e ora inizio gara | 23/01/2026 ore 11:00 | 
 
                         
                         
                         
                         
                         
                         
                         
                         
                         
                         
                         
                         
                         
                         
                         
                         
                         
                         
                         
                         
                         
                         
                         
                         
                         
                         
                         
                         
                         
                         
                         
                         
                         
                         
                         
                         
                         
                         
                         
                         
                        