highlight_off
Riferimento annuncio 312535 info

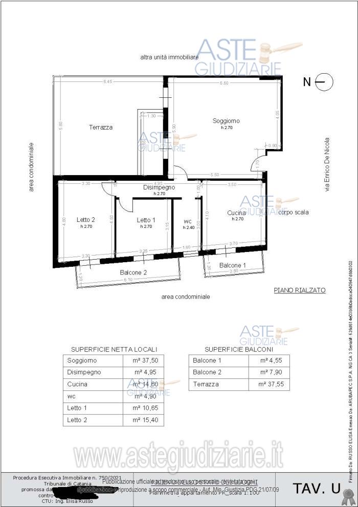
Appartamento Via Enrico De Nicola, 9, 95032 Belpasso (CT)

5,00
110,00
0
€ 45.750
Vendita all'asta Senza incanto, con gara telematica sincrona - LOTTO UNICO: Diritto di piena proprietà dell’appartamento sito a piano terra (di un edificio a tre elevazioni fuori terra ed un piano seminterrato adibito a garage) - costituito soggiorno di mq 37,50 con due porta-finestra , un corridoio cieco di mq 4,95, cucina di mq 14,60, servizio igienico di mq 4,90 con finestra con esposizione ad ovest, e alle due camere da letto, di mq 10,65 e mq 15,40, ognuna con una porta-finestra che si apre su un secondo balcone ad ovest. Prezzo base € 45.750,00 (offerta minima € 34.312,50). Data vendita 16/04/2026 ore 16:00. Giudice Dott. Nelly Gaia Mangiameli. Professionista delegato alla vendita Avv. Giambattista Cottini. Custode Giudiziario Avv. Giambattista Cottini - Email "gbcottini@gmail.com". Rif. Tribunale di Catania - Esecuzione immobiliare post legge 80 n. 750/2021

Superficie 110,00 mq
Vani 5,00
Bagni
Piano 0

Tipologia di vendita Giudiziaria
Modalità di vendita Sincrona telematica
Termine presentazione offerte 01/01/1900 ore 00:00
Data e ora inizio gara 16/04/2026 ore 16:00
Codice ID astegiudiziarie.it 4333645
5,00
110,00
0
€ 45.750

Ti interessa questa vendita?

north_east

Clicca qui per essere indirizzato alla scheda sul sito di provenienza

Bene di astegiudiziarie.it