highlight_off
Riferimento annuncio 310597 info

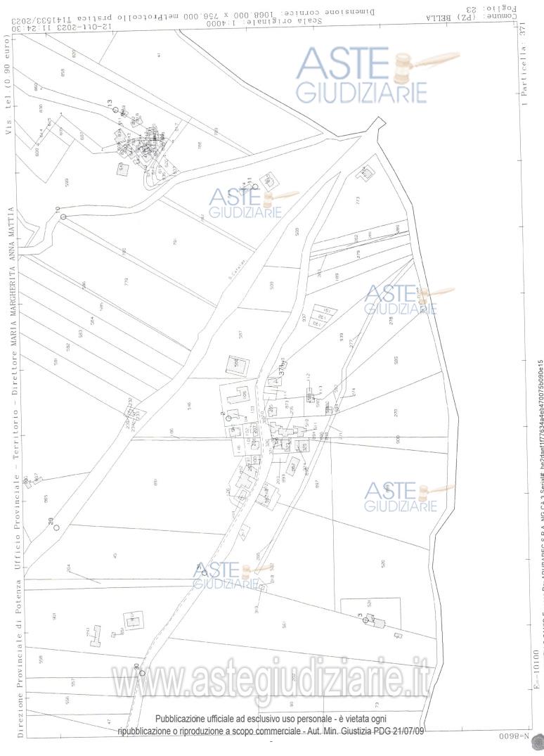
Appartamento 85051 Sant'Antonio Casalini PZ, Italia, 85051 Bella (PZ)

4,00
134,00
2
0
€ 160.030
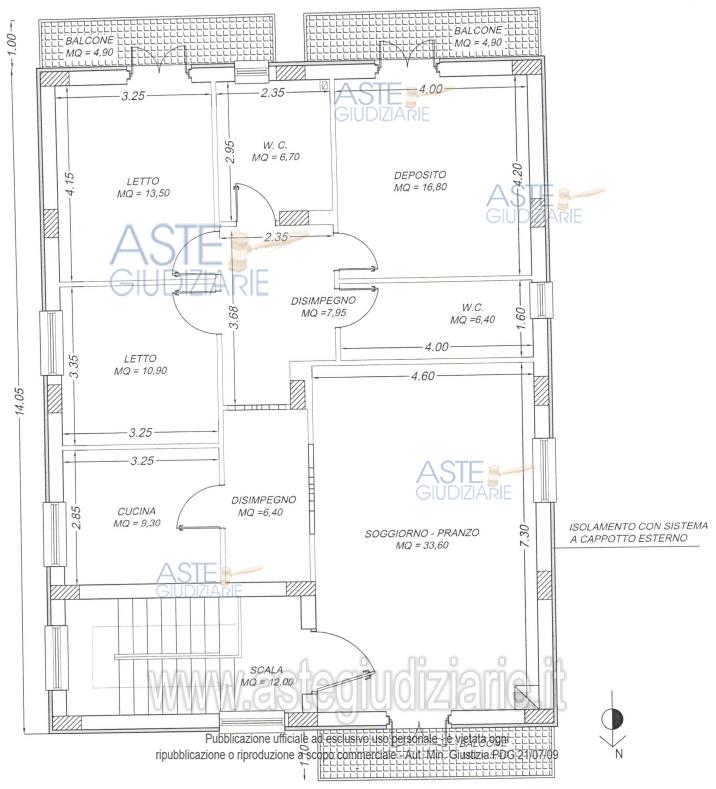
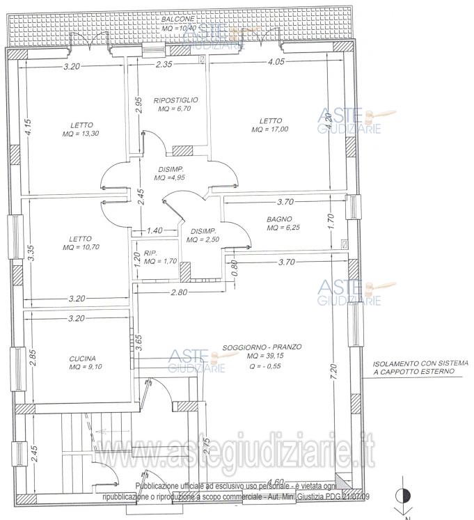
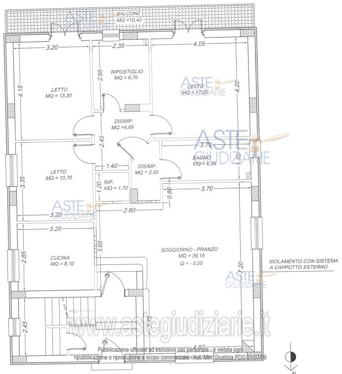
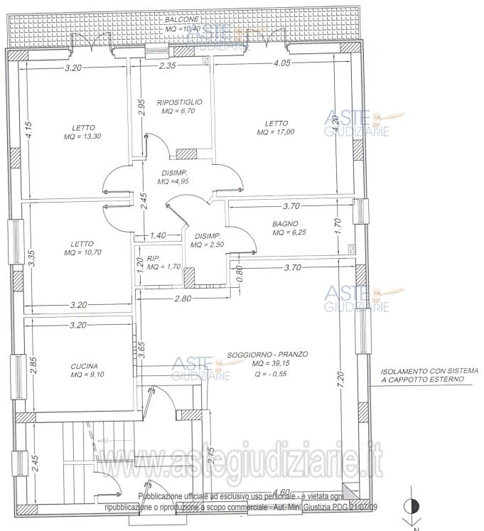
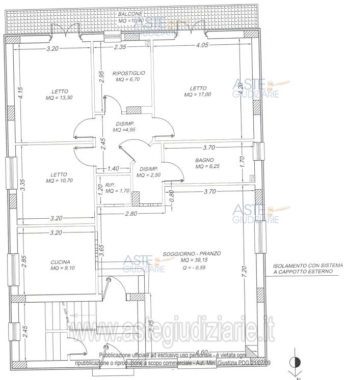
Vendita in attesa dell'emissione del nuovo bando d'asta. LOTTO 1: Piena ed intera proprietà di abitazione e garage in Località Sant'Antonio Casalini del Comune di Bella (PZ). Ultimo prezzo base € 160.030,00 (offerta minima € 120.022,50). Professionista delegato alla vendita Avv. Carmela Pandolfo - Email "carmelapandolfo@tiscali.it"; Cell. 3482944668; Tel. 0971993450. Custode Giudiziario Avv. Carmela Pandolfo - Email "carmelapandolfo@tiscali.it"; Cell. 3482944668; Tel. 0971993450. Rif. Tribunale di Potenza - Esecuzione immobiliare post legge 80 n. 136/2004

Superficie 134,00 mq
Vani 4,00
Bagni 2
Piano 0

Tipologia di vendita Giudiziaria
Modalità di vendita Asincrona telematica
Termine presentazione offerte 01/01/1900 ore 00:00
Data e ora inizio gara 02/10/2025 ore 15:00
Codice ID astegiudiziarie.it 4332228
4,00
134,00
2
0
€ 160.030

Ti interessa questa vendita?

north_east

Clicca qui per essere indirizzato alla scheda sul sito di provenienza

Bene di astegiudiziarie.it