highlight_off
Riferimento annuncio 318197 info

Appartamento Via Gaetano Bianchi, 5, 28832 Belgirate VB, Italia, 28832 Belgirate (VB)

5,00
100,00
0
€ 20.000
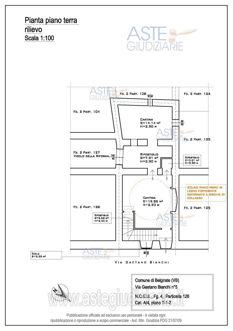
Vendita all'asta Senza incanto, con gara telematica asincrona - LOTTO 5: Appartamento compreso in un aggregato di edifici del centro storico disposto su tre livelli. Il pian terreno comprende tre vani cantina consecutivi destinati a cantina. Al piano primo, raggiungibile tramite una scala interna, sono presenti una camera comunicante con un loggiato aperto dal quale si accede alla cucina e alla scala che conduce al secondo piano. Qui è presente unicamente una camera da letto. Prezzo base € 20.000,00 (offerta minima € 15.000,00). Data inizio operazioni di vendita: 19/12/2025 ore 10:00. Giudice Dott. Caterina Sinico. Custode Giudiziario Aste Giudiziarie Inlinea Spa - Email "ufficiocustodie@astegiudiziarie.it". Rif. Tribunale di Verbania - Contenzioso civile n. 200/2024

Superficie 100,00 mq
Vani 5,00
Bagni
Piano 0

Tipologia di vendita Giudiziaria
Modalità di vendita Asincrona telematica
Termine presentazione offerte 18/12/2025 ore 12:00
Data e ora inizio gara 19/12/2025 ore 10:00
Codice ID astegiudiziarie.it 4338527
5,00
100,00
0
€ 20.000

Ti interessa questa vendita?

north_east

Clicca qui per essere indirizzato alla scheda sul sito di provenienza

Bene di astegiudiziarie.it