Riferimento annuncio 318185
        
    
    Appartamento Via Mazzini, 4, 28832 Belgirate VB, Italia, 28832 Belgirate (VB)
                
                6,00
            
            
                
                2514,58
            
            
                
                0
            
        
€ 1.110.000    
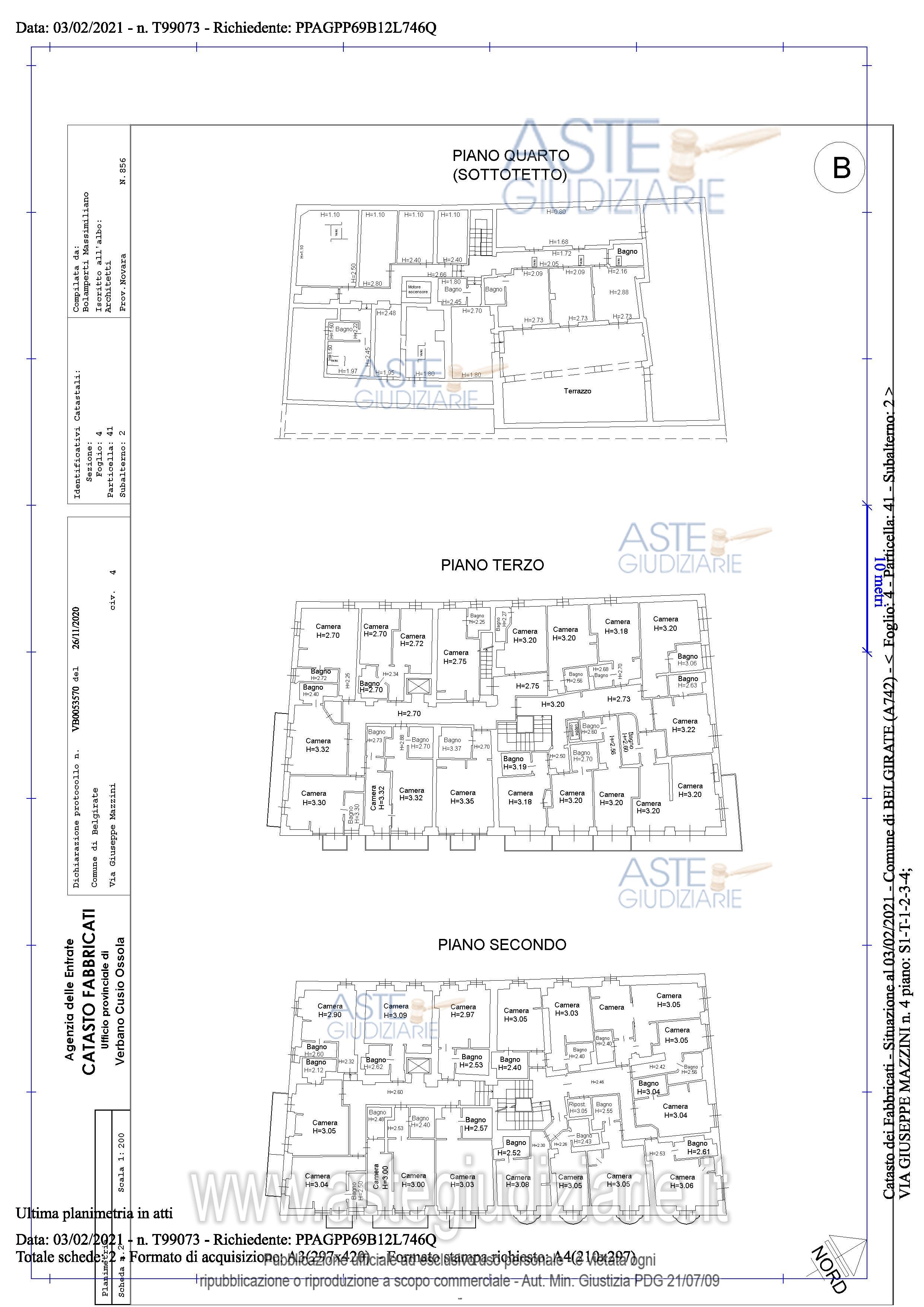
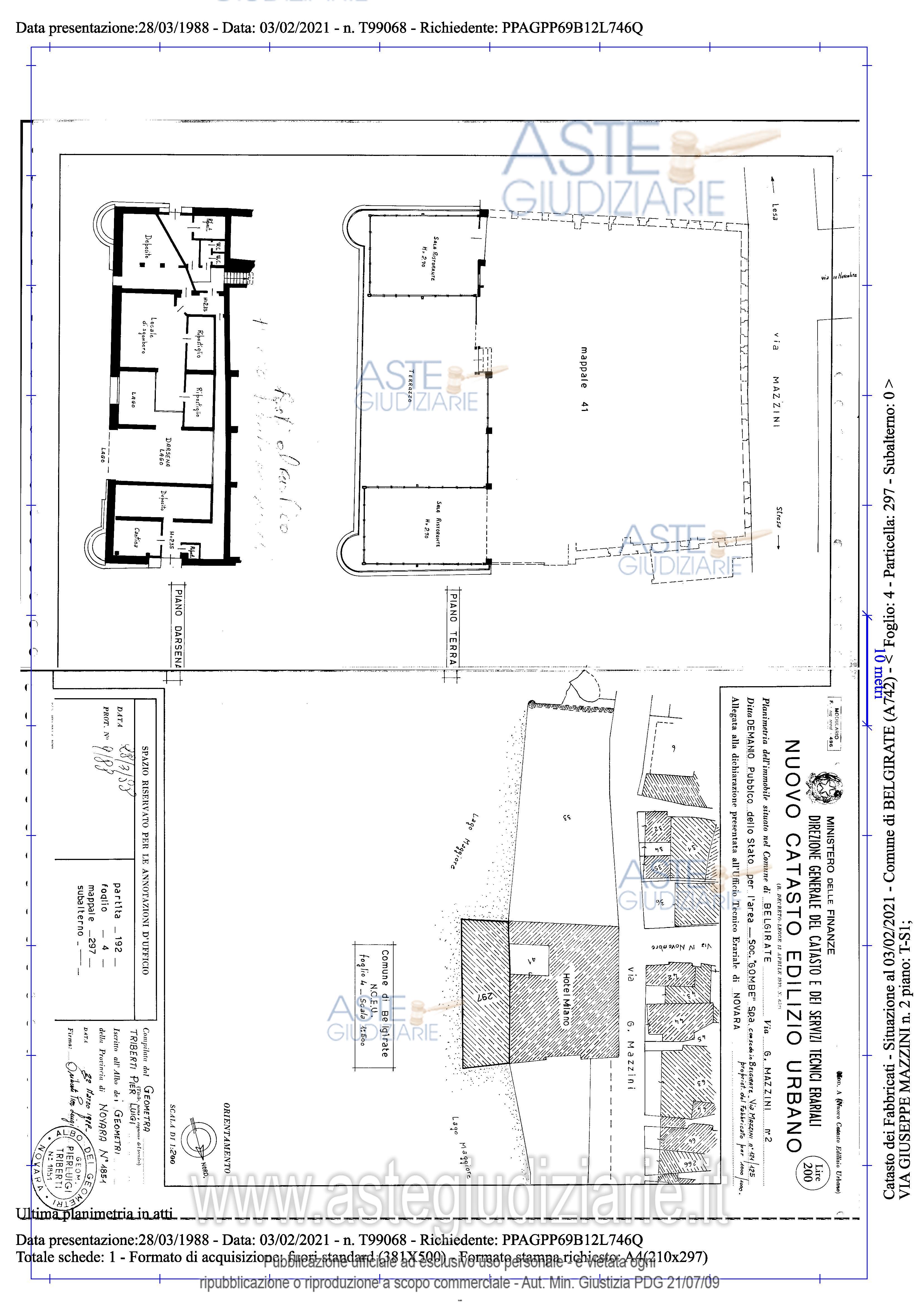
                Vendita all'asta Senza incanto, con gara telematica asincrona - LOTTO 1:  Diritto di piena proprietà per:  Bene N° 1 - Albergo;• Bene N° 2 - Appartamento ; Bene N° 4 - Corte o resede. Diritto di superficie per Bene N° 3 - Porzione d'immobile. Prezzo base € 1.110.000,00 (offerta minima € 832.500,00). Data inizio operazioni di vendita: 19/12/2025 ore 10:00. Giudice Dott. Caterina Sinico. Curatore Dott. Manuela Bianchi - Email "fallimentogombe.1.2023@pec.mba-studio.com"; Tel. 03321631163. Custode Giudiziario  Dott. Manuela Bianchi - Email "fallimentogombe.1.2023@pec.mba-studio.com"; Tel. 03321631163.  Rif. Tribunale di Verbania - Esecuzione immobiliare post legge 80 n. 63/2020
            
   
| Superficie | 2514,58 mq | 
|---|---|
| Vani | 6,00 | 
| Bagni | |
| Piano | 0 | 
| Tipologia di vendita | Giudiziaria | 
|---|---|
| Modalità di vendita | Asincrona telematica | 
| Termine presentazione offerte | 18/12/2025 ore 12:00 | 
| Data e ora inizio gara | 19/12/2025 ore 10:00 | 
 
                         
                         
                         
                         
                         
                         
                         
                         
                         
                         
                         
                         
                         
                         
                         
                        