highlight_off
Riferimento annuncio 323899 info

Appartamento Via Campagnola di Mezzo, 23/A, 25081 Campagnola BS, Italia, 25081 Bedizzole (BS)

0
€ 136.000
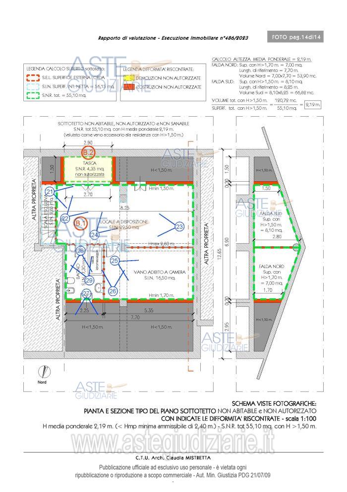
Vendita all'asta Senza incanto, con gara telematica asincrona - LOTTO UNICO: Appartamento trilocale al primo piano dotato di sottotetto al secondo piano e corte esclusiva di circa 150 mq. Competono le proporzionali quote sulle parti comuni. Prezzo base € 136.000,00 (offerta minima € 102.000,00). Data inizio operazioni di vendita: 18/03/2026 ore 12:00. Professionista delegato alla vendita Not. Guido Cirilli. Custode Giudiziario Not. Guido Cirilli - Email "info.bsimmobiliare@gmail.com". Rif. Tribunale di Brescia - Espropriazione immobiliare (cartabia) n. 486/2023

Superficie mq
Vani
Bagni
Piano 0

Tipologia di vendita Giudiziaria
Modalità di vendita Asincrona telematica
Termine presentazione offerte 17/03/2026 ore 12:00
Data e ora inizio gara 18/03/2026 ore 12:00
Codice ID astegiudiziarie.it 4343271
0
€ 136.000

Ti interessa questa vendita?

north_east

Clicca qui per essere indirizzato alla scheda sul sito di provenienza

Bene di astegiudiziarie.it