highlight_off
Riferimento annuncio 109597 info

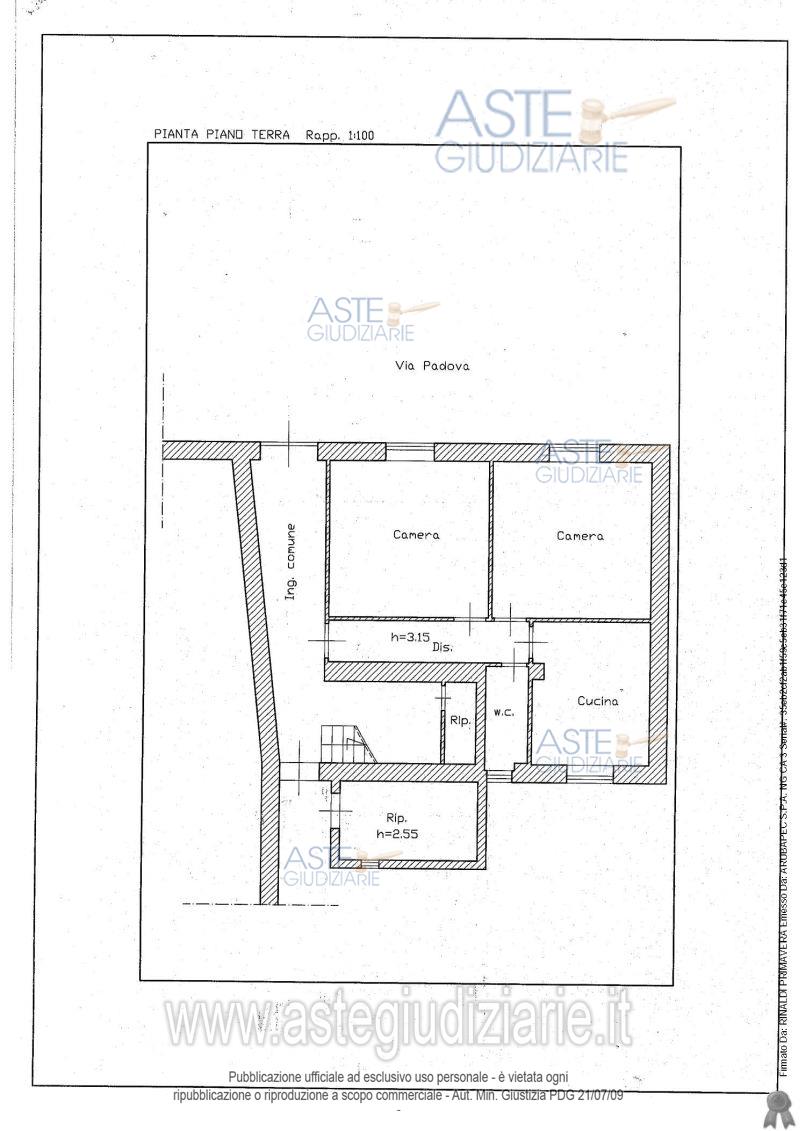
Appartamento VIA PADOVA, 84091 Battipaglia (SA)

3,50
860,00
0
€ 146.734
Vendita all'asta Senza incanto - LOTTO UNICO: Fabbricato costituito nel seguente modo: 2 Appartamenti,1 locale sottotetto,1 locale ripostiglio sottoscala al piano terra,1 corte comune,2 terreni e 1 Corte destinata a piazzale asfaltato con entrostante tettoia. Prezzo base € 146.733,75 (offerta minima € 110.050,32). Data vendita 02/07/2026 ore 17:00. Giudice: Dott. Daniela Oliva. Professionista delegato alla vendita: Avv. Paolo Glielmi. Custode Giudiziario: Avv. Paolo Glielmi - Email "avvpaologlielmi@libero.it"; Tel. 0828/213216; Cell. 338/4403965. Rif. Tribunale di Salerno - Contenzioso civile n. 4042/2016

Superficie 860,00 mq
Vani 3,50
Bagni
Piano 0

Tipologia di vendita Giudiziaria
Modalità di vendita Presso il venditore
Termine presentazione offerte 01/01/1900 ore 00:00
Data e ora inizio gara 02/07/2026 ore 17:00
Codice ID astegiudiziarie.it 4218585
3,50
860,00
0
€ 146.734

Ti interessa questa vendita?

north_east

Clicca qui per essere indirizzato alla scheda sul sito di provenienza

Bene di astegiudiziarie.it