highlight_off
Riferimento annuncio 311521 info

Appartamento Lungomare Ugo Lorusso, 47, 70128 Bari BA, Italia, 70100 Bari (BA)

5,50
123,94
0
€ 157.024
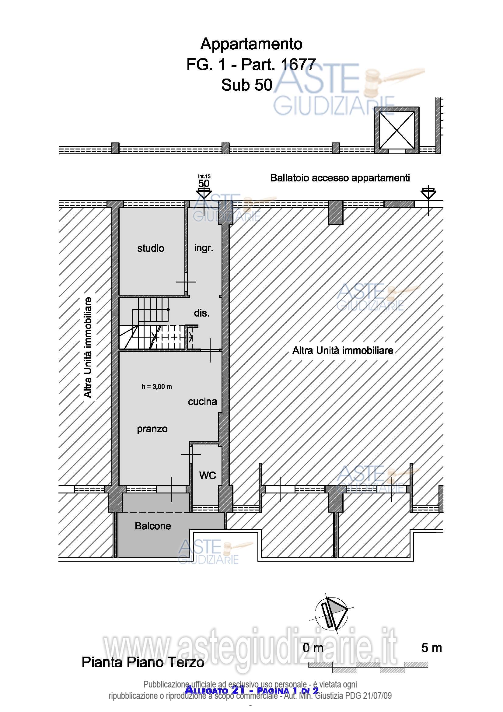
Vendita all'asta Senza incanto, con gara telematica asincrona - LOTTO UNICO: Piena proprietà di appartamento di tipo economico al 3° e 4° piano, composto dalla zona giorno (ingresso, studio, cucina/soggiorno, WC e balcone vista mare) al 3° piano, mentre la zona notte (letto con balcone, bagno, letto matrimoniale con balcone vista mare) al 4° piano. Sui balconi del 4° piano sono presenti due modesti abusi edilizi, sul primo vi è la chiusura a vetri sul secondo vi è un ripostiglio in struttura leggera di alluminio con vetri, che andranno eliminati a cura e spese del futuro acquirente. Prezzo base € 157.023,50 (offerta minima € 117.767,70). Data inizio operazioni di vendita: 25/11/2025 ore 17:45. Giudice Dott. Marina Cavallo. Professionista delegato alla vendita Dott. Antonella Bernardi - Email "antonella.bernardi@studiobernardibari.it". Custode Giudiziario Dott. Antonella Bernardi - Email "antonella.bernardi@studiobernardibari.it". Rif. Tribunale di Bari - Espropriazione immobiliare (cartabia) n. 435/2023

Superficie 123,94 mq
Vani 5,50
Bagni
Piano 0

Tipologia di vendita Giudiziaria
Modalità di vendita Asincrona telematica
Termine presentazione offerte 01/01/1900 ore 00:00
Data e ora inizio gara 25/11/2025 ore 17:45
Codice ID astegiudiziarie.it 4333103
5,50
123,94
0
€ 157.024

Ti interessa questa vendita?

north_east

Clicca qui per essere indirizzato alla scheda sul sito di provenienza

Bene di astegiudiziarie.it