highlight_off
Riferimento annuncio 310393 info

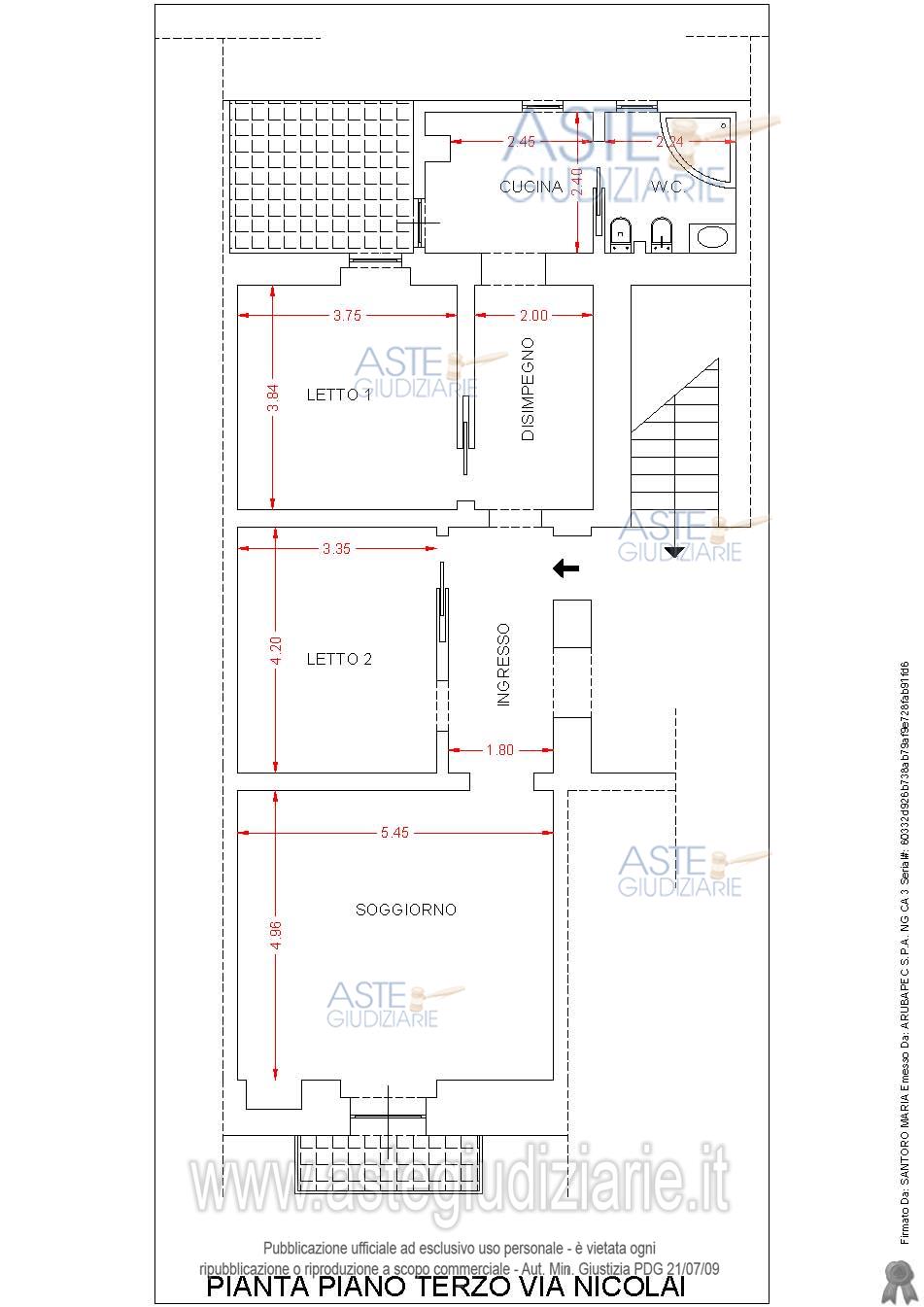
Appartamento Via Domenico Nicolai, 203, 70122 Bari BA, Italia, 70100 Bari (BA)

55,00
103,00
0
€ 115.875
Vendita all'asta Senza incanto, con gara telematica asincrona - LOTTO UNICO: Diritto di proprietà per la quota pari all’intero dell’abitazione di tipo civile al piano terzo del maggior fabbricato con accesso dalla Via Nicolai n.203, composto da ingresso-corridoio, soggiorno, due camere da letto, cucina e bagno. Prezzo base € 115.875,00 (offerta minima € 86.906,25). Data inizio operazioni di vendita: 19/02/2026 ore 12:00. Giudice Dott. Assunta Napoliello. Curatore Avv. Gianfranco Todaro. Rif. Tribunale di Bari - Volontaria giurisdizione n. 1060/2019

Superficie 103,00 mq
Vani 55,00
Bagni
Piano 0

Tipologia di vendita Giudiziaria
Modalità di vendita Asincrona telematica
Termine presentazione offerte 18/02/2026 ore 12:00
Data e ora inizio gara 19/02/2026 ore 12:00
Codice ID astegiudiziarie.it 4332063
55,00
103,00
0
€ 115.875

Ti interessa questa vendita?

north_east

Clicca qui per essere indirizzato alla scheda sul sito di provenienza

Bene di astegiudiziarie.it