highlight_off
Riferimento annuncio 114926 info

Appartamento 09040 Ballao SU, Italia, 09040 Ballao (SU)

5,00
123,00
0
€ 37.600
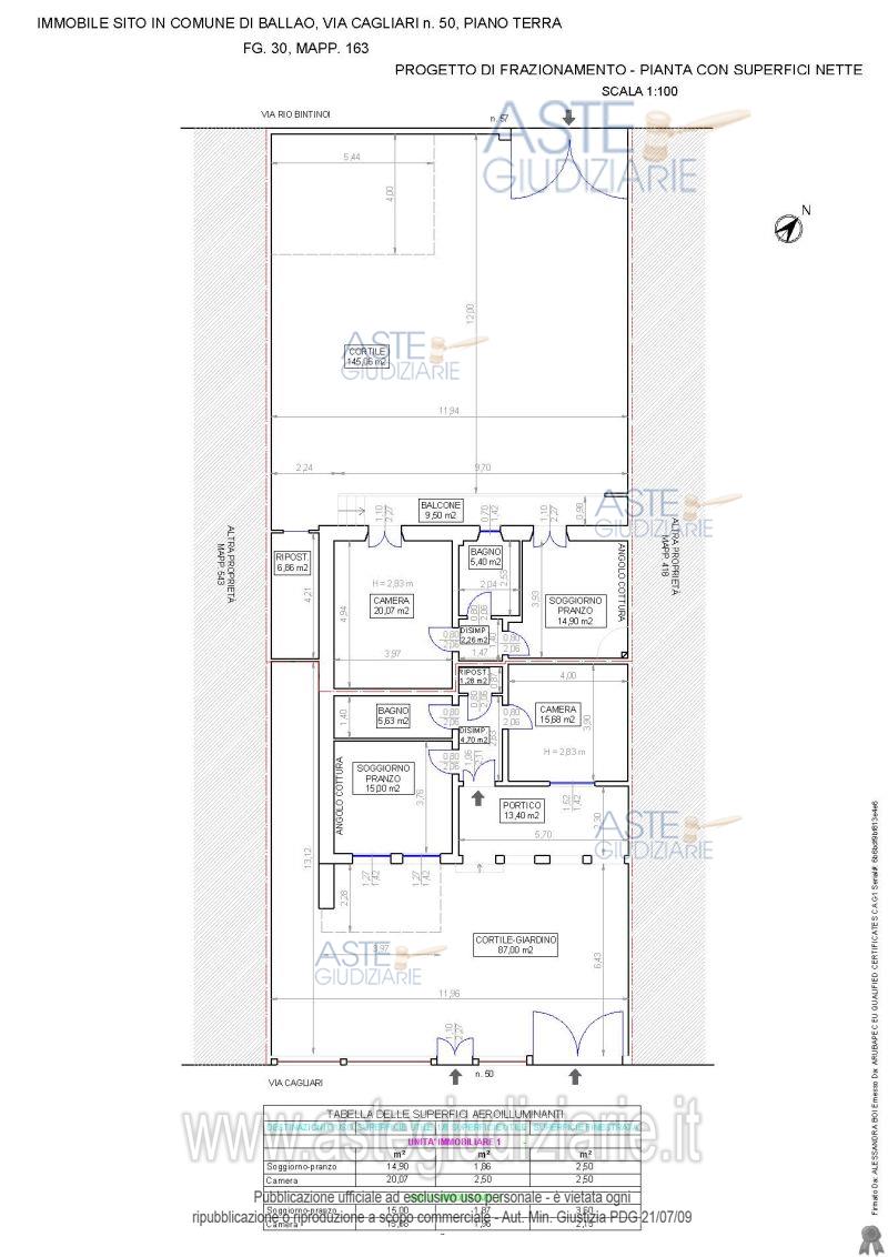
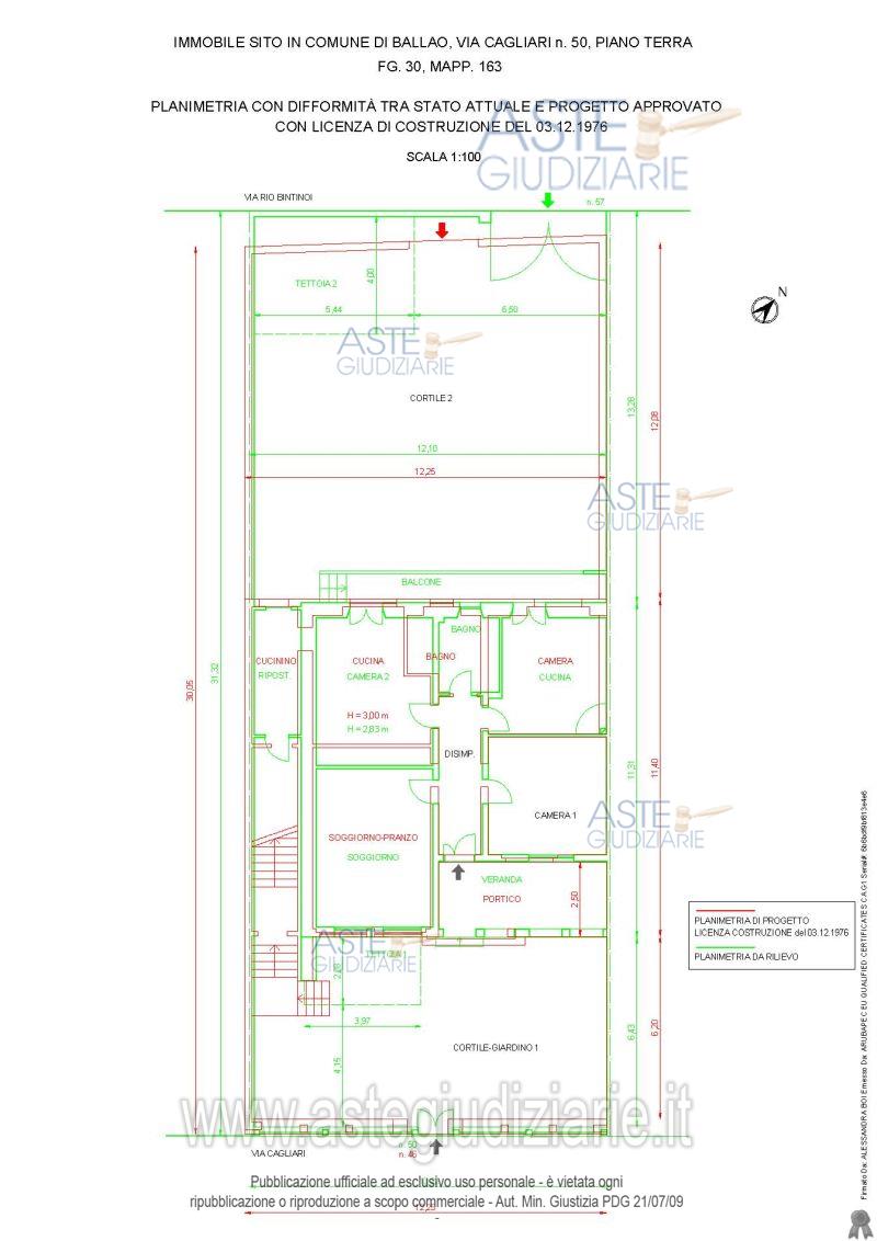
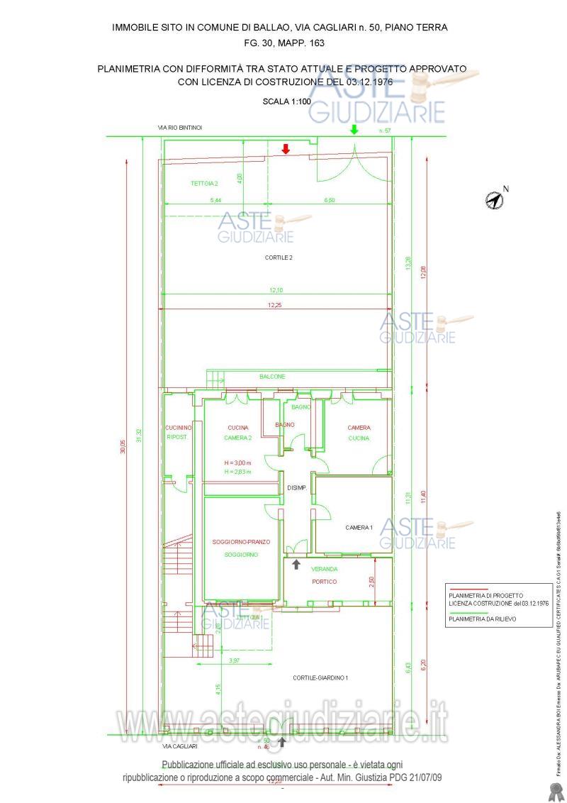
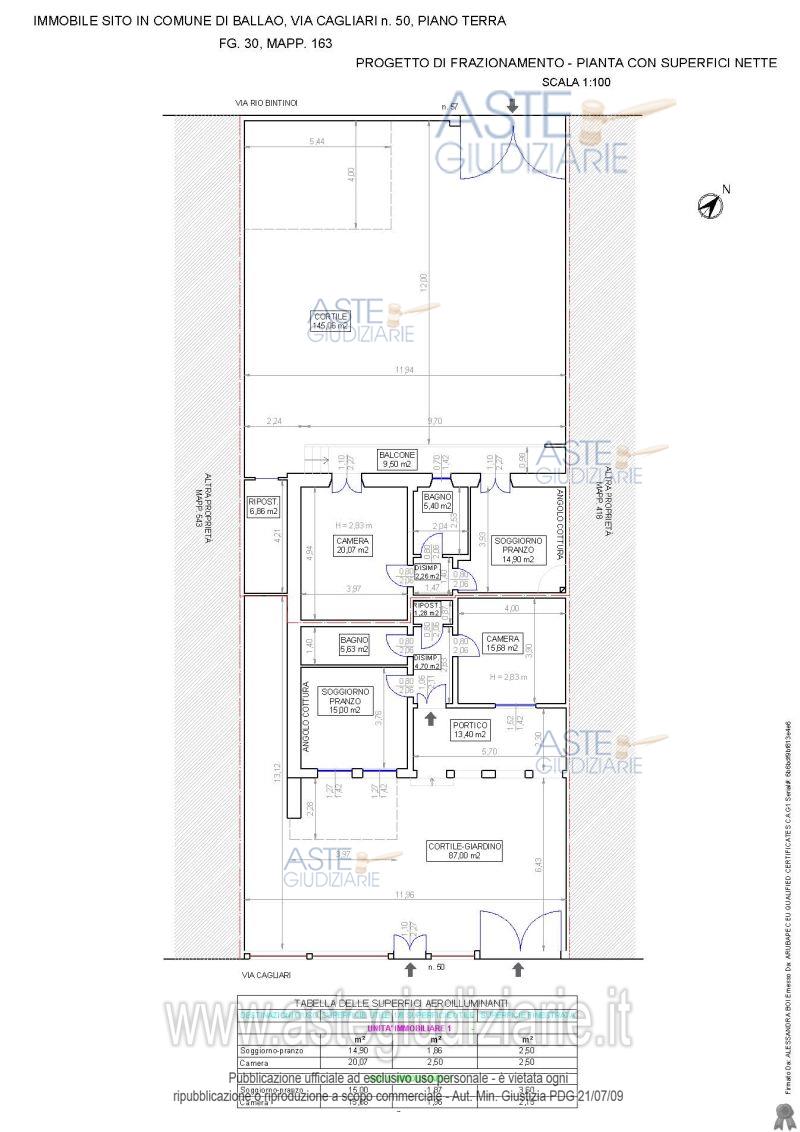
Vendita all'asta Senza incanto, con gara telematica asincrona - LOTTO UNICO: Quota pari all’intero del diritto di proprietà del fabbricato abitativo al piano terra con accesso pedonale dalla Via Cagliari 50 e carrabile dalla Via Rio Bintinoi n.57, composto da due bilocali, di cui uno composto da soggiorno-pranzo con angolo cottura, camera, disimpegno, bagno, oltre ripostiglio con accesso solo dal cortile, un balcone e il cortile ; l’altro composto da soggiorno pranzo con angolo cottura, camera, ripostiglio, disimpegno, bagno, oltre portico e cortile , oltre portico e il cortile. Prezzo base € 37.600,00 (offerta minima € 28.200,00). Data inizio operazioni di vendita: 25/11/2025 ore 11:00. Giudice Francesco De Giorgi. Professionista delegato alla vendita Not. Stefano Casti - Email "ufficiouniconotai@pec.it"; Tel. 07060222574. Custode Giudiziario Ivg Cagliari - Email "ivg.visiteimmobili@tiscali.it"; Tel. 0702299036. Rif. Tribunale di Cagliari - Esecuzione immobiliare post legge 80 n. 79/2011

Superficie 123,00 mq
Vani 5,00
Bagni
Piano 0

Tipologia di vendita Giudiziaria
Modalità di vendita Asincrona telematica
Termine presentazione offerte 01/01/1900 ore 00:00
Data e ora inizio gara 25/11/2025 ore 11:00
Codice ID astegiudiziarie.it 255839
5,00
123,00
0
€ 37.600

Ti interessa questa vendita?

north_east

Clicca qui per essere indirizzato alla scheda sul sito di provenienza

Bene di astegiudiziarie.it