highlight_off
Riferimento annuncio 332307 info

Appartamento Via Luigi Napolitano, 83022 Baiano AV, Italia, 83022 Baiano (AV)

11,50
600,00
0
€ 181.600
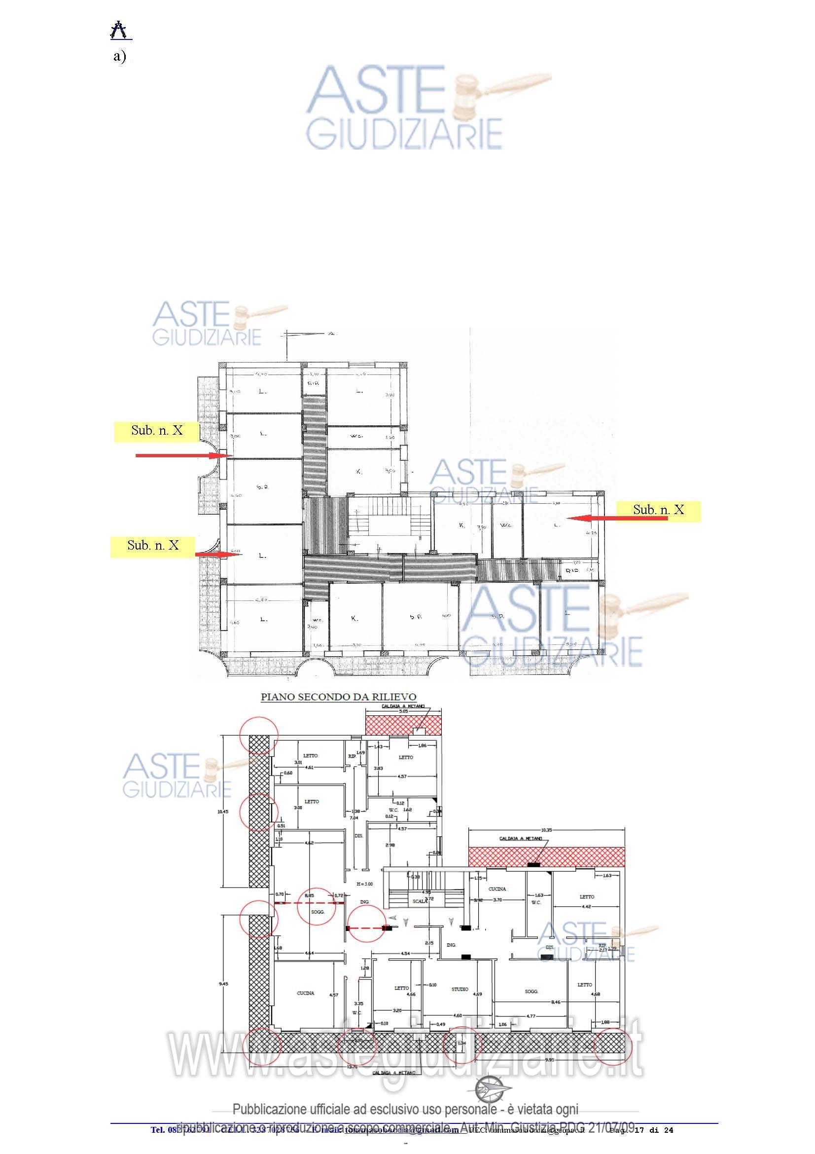
Vendita all'asta Senza incanto, con gara telematica sincrona - LOTTO UNICO: Unità immobiliari all'interno di un fabbricato condominiale: due appartamenti e quota pari a 1/3 di autorimessa. Prezzo base € 181.600,00 (offerta minima € 136.200,00). Data vendita 02/07/2026 ore 10:00. Professionista delegato alla vendita Not. Fabrizio Virginio Pesiri - Email "fpesiri@notariato.it"; Tel. 0825/32273. Custode Giudiziario Pietro Paradiso - Email "pietro.paradiso@legalmail.it"; Tel. 0825/1686551. Rif. Tribunale di Avellino - Esecuzione immobiliare post legge 80 n. 19/2023

Superficie 600,00 mq
Vani 11,50
Bagni
Piano 0

Tipologia di vendita Giudiziaria
Modalità di vendita Sincrona telematica
Termine presentazione offerte 01/07/2026 ore 12:00
Data e ora inizio gara 02/07/2026 ore 10:00
Codice ID astegiudiziarie.it 4349530
11,50
600,00
0
€ 181.600

Ti interessa questa vendita?

north_east

Clicca qui per essere indirizzato alla scheda sul sito di provenienza

Bene di astegiudiziarie.it