highlight_off
Riferimento annuncio 309430 info

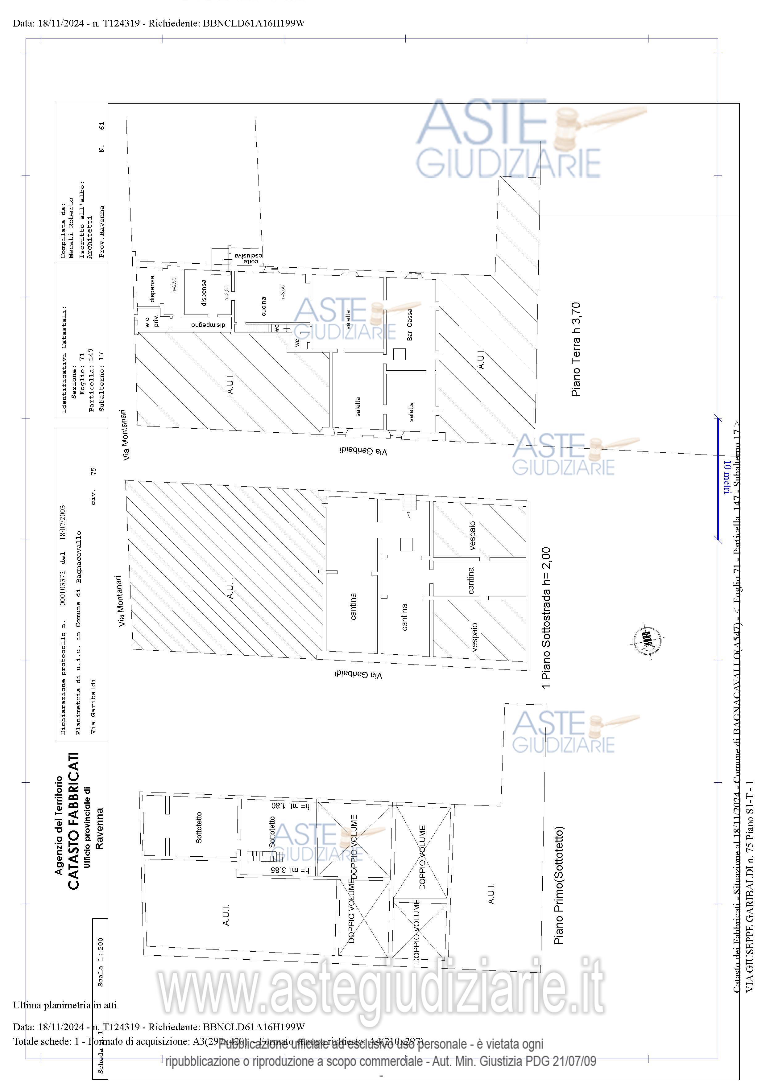
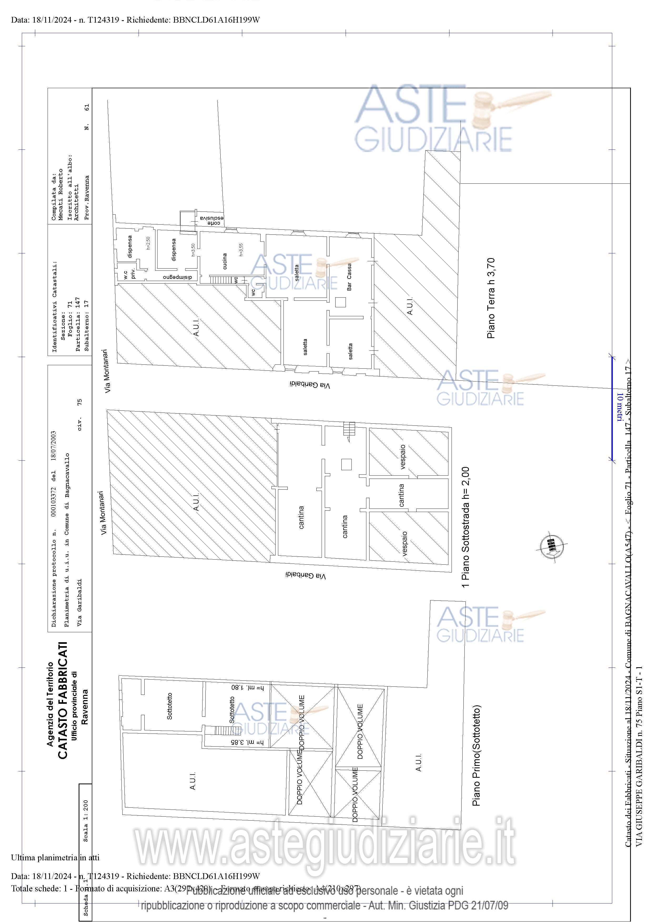
Appartamento Via Giuseppe Garibaldi 75, 48012 Bagnacavallo (RA)

0
€ 81.563
Vendita all'asta Senza incanto, con gara telematica asincrona - LOTTO UNICO: Due unità immobiliari a destinazione residenziale e commerciale oltre ad area cortilizia facenti parte di più ampio fabbricato di remota costruzione, denominato Palazzo Tesorieri. Prezzo base € 81.562,50 (offerta minima € 61.171,87). Data inizio operazioni di vendita: 17/03/2026 ore 11:00. Giudice Dott. Paolo Gilotta. Professionista delegato alla vendita Avv. Antonella Montanari - Email "amontanari@paviraniassociati.it". Custode Giudiziario Avv. Antonella Montanari - Email "amontanari@paviraniassociati.it"; Tel. 0544270020. Rif. Tribunale di Ravenna - Esecuzione immobiliare post legge 80 n. 105/2024

Superficie mq
Vani
Bagni
Piano 0

Tipologia di vendita Giudiziaria
Modalità di vendita Asincrona telematica
Termine presentazione offerte 01/01/1900 ore 00:00
Data e ora inizio gara 17/03/2026 ore 11:00
Codice ID astegiudiziarie.it 4331198
0
€ 81.563

Ti interessa questa vendita?

north_east

Clicca qui per essere indirizzato alla scheda sul sito di provenienza

Bene di astegiudiziarie.it