highlight_off
Riferimento annuncio 323332 info

Appartamento Via del Pozzo, 6, 90011 Bagheria PA, Italia, 90011 Bagheria (PA)

336,45
0
€ 226.775
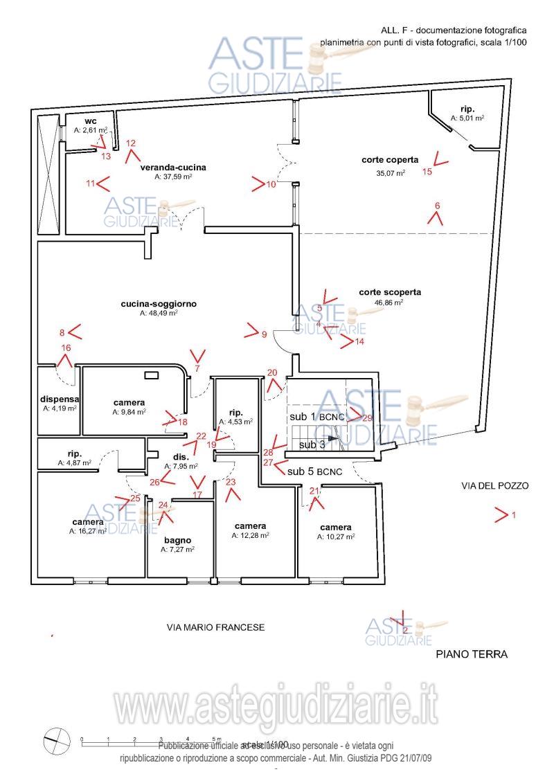
Vendita all'asta Senza incanto, con gara telematica sincrona - LOTTO UNICO: Edificio in Aspra, fr. di Bagheria, via del Pozzo 6-6/A, composto da unità residenziale, a piano terra su un unico livello, con corte scoperta pertinenziale, estesa al lordo mq 187,45 ed il cortile esteso al lordo mq 93,57, identificata al c.f. fg. 8, part. 2296 sub. 6, costituita da soggiorno-cucina, corridoio, 4 camere, guardaroba, bagno, vano dispensa, 2°cucina, piccolo bagno-lavanderia, altro corridoio, altra camera e vano scala; oltre lastrico solare, p. 1, mq 149,00, al c.f. fg. 8, part. 2296 sub. 3. Prezzo base € 226.775,48 (offerta minima € 170.081,61). Data vendita 13/03/2026 ore 09:00. Professionista delegato alla vendita Avv. Giancarlo Lo Bello - Email "avvgiancarlolobello@libero.it"; Tel. 0918113722. Custode Giudiziario Avv. Giancarlo Lo Bello - Email "avvgiancarlolobello@libero.it"; Tel. 0918113722. Rif. Tribunale di Termini Imerese - Espropriazione immobiliare (cartabia) n. 203/2024

Superficie 336,45 mq
Vani
Bagni
Piano 0

Tipologia di vendita Giudiziaria
Modalità di vendita Sincrona telematica
Termine presentazione offerte 01/01/1900 ore 00:00
Data e ora inizio gara 13/03/2026 ore 09:00
Codice ID astegiudiziarie.it 4342586
336,45
0
€ 226.775

Ti interessa questa vendita?

north_east

Clicca qui per essere indirizzato alla scheda sul sito di provenienza

Bene di astegiudiziarie.it