highlight_off
Riferimento annuncio 221162 info

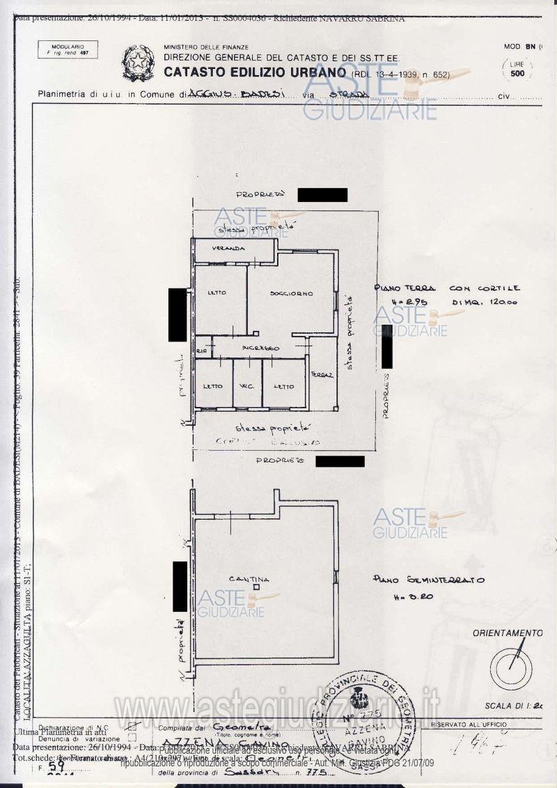
Appartamento Località Muddizza d'Azzagulta, 07030 Badesi (SS)

0
€ 27.754
Vendita all'asta Senza incanto - LOTTO UNICO: Piena proprietà dell’immobile abitativo sito nel Comune di Badesi, Località Muddizzad'Azzagulta, costituito da appartamento, cantina e terreno di pertinenza censito al N.C.E.U. del Comune diBadesi al foglio 59, particella 2841 Cat. A/3 classe 2 Rendita catastale € 347,34. Prezzo base € 27.754,00 (offerta minima € 20.815,50). Data vendita 04/11/2025 ore 10:00. Giudice Federica Lunari. Professionista delegato alla vendita Dott. Marco Scanu - Email "M.SCANU@STUDIOSCANU.NET"; Tel. 079278003. Custode Giudiziario Ivg Tempio Pausania - Email "visite.ivgtempio@gmail.com"; Tel. 079630505. Rif. Tribunale di Tempio Pausania - Esecuzione immobiliare post legge 80 n. 24/2012

Superficie mq
Vani
Bagni
Piano 0

Tipologia di vendita Giudiziaria
Modalità di vendita Presso il venditore
Termine presentazione offerte 01/01/1900 ore 00:00
Data e ora inizio gara 04/11/2025 ore 10:00
Codice ID astegiudiziarie.it 250040
0
€ 27.754

Ti interessa questa vendita?

north_east

Clicca qui per essere indirizzato alla scheda sul sito di provenienza

Bene di astegiudiziarie.it