highlight_off
Riferimento annuncio 314822 info

Appartamento Piancavallo, Via Renzo Granzotto, 24, 33081 Aviano (PN)

0
€ 165.000
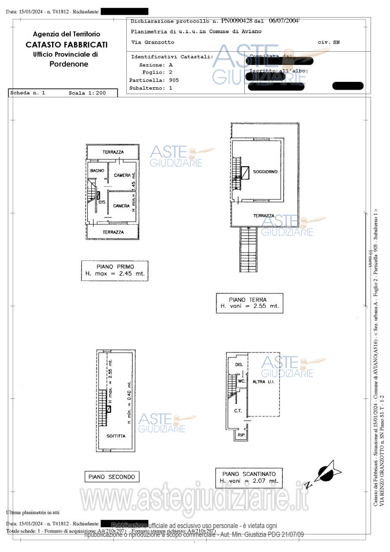
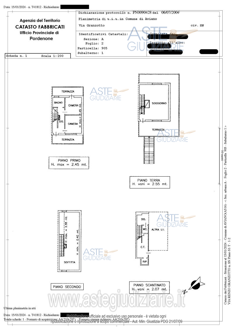
Vendita all'asta Senza incanto, con gara telematica sincrona - LOTTO 2: LOTTO SECONDO: Abitazione su 3 piani, Piano Terra: unico ampio vano open-space adibito a soggiorno con salotto, sala da pranzo e cucina; Piano Primo: disimpegno, bagno e due camere. Soffitta mansardata. Piano scantinato: disimpegno, piccolo bagno, ripostiglio e garage di mq 24. Area scoperta esterna di pertinenza destinata a giardino. Occupato. Difformità catastali ed edilizie sanabili. Prezzo base € 165.000,00 (offerta minima € 123.750,00). Data vendita 10/11/2025 ore 17:30. Giudice Dott. Elisa Tesco. Professionista delegato alla vendita Not. Gaspare Gerardi - Email "ggerardi@notariato.it". Custode Giudiziario Ass. Not. Custode Giudiziario - Email "custodi@associazionenotarile.pn.it"; Tel. 3294536349. Rif. Tribunale di Pordenone - Espropriazione immobiliare (cartabia) n. 102/2023

Superficie mq
Vani
Bagni
Piano 0

Tipologia di vendita Giudiziaria
Modalità di vendita Sincrona telematica
Termine presentazione offerte 01/01/1900 ore 00:00
Data e ora inizio gara 10/11/2025 ore 17:30
Codice ID astegiudiziarie.it 4336057
0
€ 165.000

Ti interessa questa vendita?

north_east

Clicca qui per essere indirizzato alla scheda sul sito di provenienza

Bene di astegiudiziarie.it