highlight_off
Riferimento annuncio 313393 info

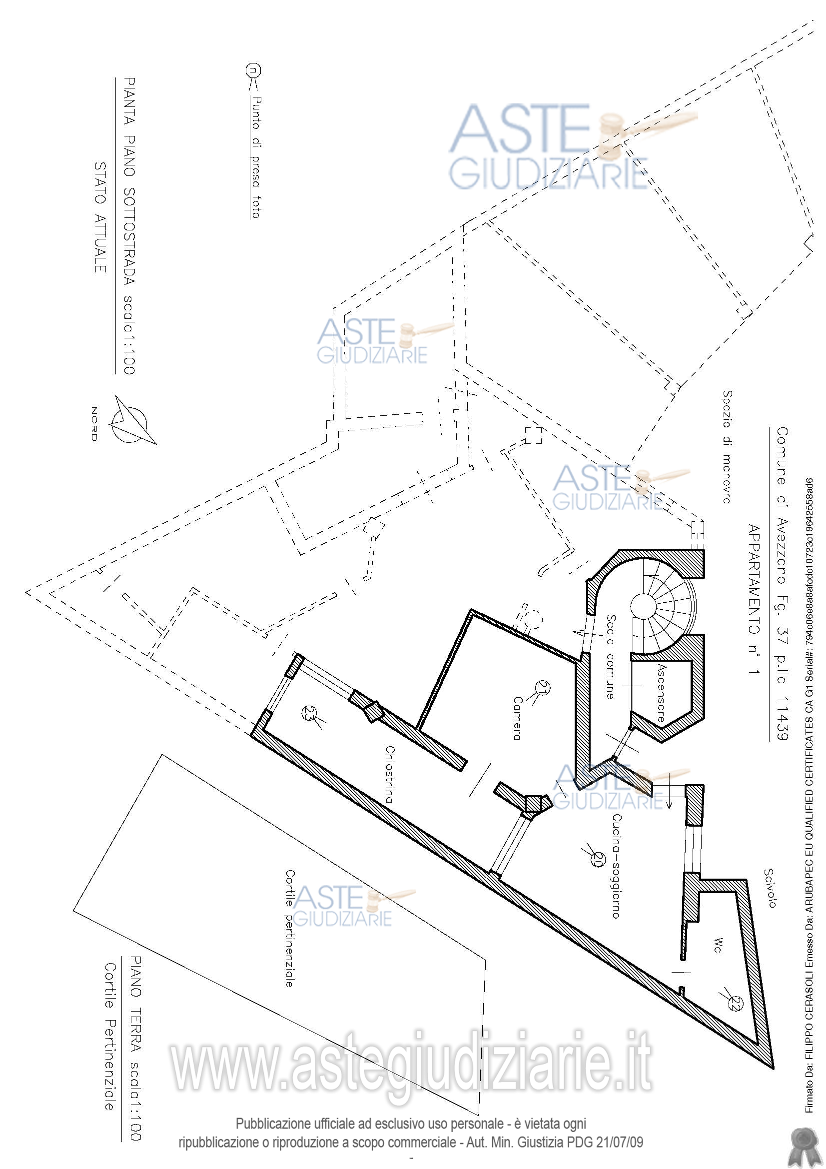
Appartamento Via Cristoforo Colombo, 67051 Avezzano AQ, Italia, 67051 Avezzano (AQ)

4,50
86,00
0
€ 53.409
Vendita all'asta Senza incanto, con gara telematica asincrona - LOTTO 04: bene n.6: appartamento sito in Avezzano via Cristoforo Colombo snc. Identificato in catasto fabbricati al foglio 37, particella 1439, sub 16 categoria A2, classe 3, consistenza 4,5, superficie catastale mq 86, rendita 290,51, piano S1, piena proprietà. Prezzo base € 53.409,35 (offerta minima € 40.057,01). Data inizio operazioni di vendita: 11/11/2025 ore 16:00. Giudice Francesca Greco. Professionista delegato alla vendita Avv. Antonella Tarquini - Email "studiobarbatitarquini@gmail.com"; Cell. 3202490878; Tel. 3202490878. Custode Giudiziario Avv. Antonella Tarquini - Email "studiobarbatitarquini@gmail.com"; Tel. 3202490878. Rif. Tribunale di Avezzano - Espropriazione immobiliare (cartabia) n. 25/2024

Superficie 86,00 mq
Vani 4,50
Bagni
Piano 0

Tipologia di vendita Giudiziaria
Modalità di vendita Asincrona telematica
Termine presentazione offerte 01/01/1900 ore 00:00
Data e ora inizio gara 11/11/2025 ore 16:00
Codice ID astegiudiziarie.it 4334575
4,50
86,00
0
€ 53.409

Ti interessa questa vendita?

north_east

Clicca qui per essere indirizzato alla scheda sul sito di provenienza

Bene di astegiudiziarie.it